
Bonava Deutschland GmbH
Firma Bonava Deutschland GmbH
Kontaktiere den Anbieter schriftlich, es ist keine Telefonnummer hinterlegt.
Dieses Angebot ist Teil des Neubauprojekts
Bergische Gärten
Preise & Kosten
Provision für Käufer
provisionsfrei
Lage
Hier wohnen Sie familienfreundlich mit kurzen Wegen im Alltag und in die Natur: Zur Kita sind es 3 Minuten, zu Grundschule und Gymnasium 10 Minuten zu Fuß. Altstadt, Supermärkte, Hallenbad; alles befindet sich in der Nähe. Nur 10 Minuten zum Stadtpark und noch schneller zur Mettmanner Quelle.
Das Haus
Kategorie
Doppelhaushälfte
Geschosse
50 Geschosse
Bezug
2026
Das Neubauprojekt
Energie & Heizung
Warum sehe ich diese Anzeige? – Du siehst diese Anzeige basierend auf Ihrer Navigation auf unserer Website und den Suchkriterien, die du verwendet hast.
Weitere Energiedaten
Heizungsart
Fußbodenheizung
Details
Objektbeschreibung
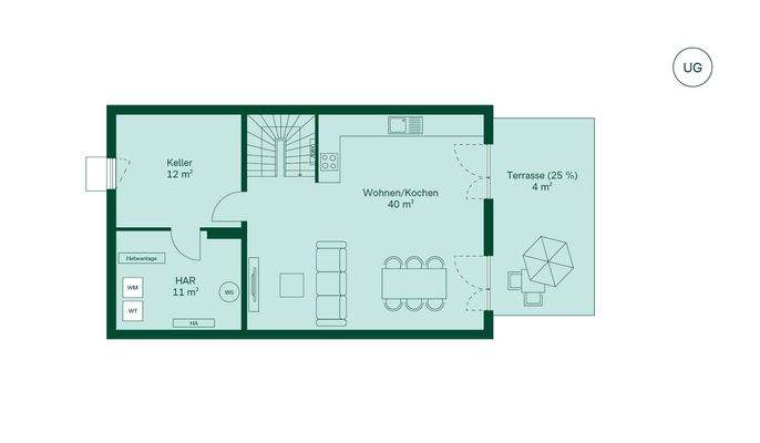
Die Terrasse bietet Raum für entspannte Stunden im Freien, damit Sie Ihr Familienleben in vollen Zügen genießen können.
Willkommen in Ihrem neuen Zuhause. Im Untergeschoss erwartet Sie ein großzügiger Wohn- und Küchenbereich, der durch die Terrasse nach draußen erweitert wird. Der Keller bietet zusätzliche...
Ausstattung
- Wärmepumpe
- Terrasse und Garten
- Außenstellplatz und Garage
- Fußbodenheizung
- bodengleiche Dusche
- Badewanne
- bodentiefe Fenster
- Handtuchheizkörper
- elektrische Rollläden
Weitere Informationen
Sonstiges
bonava.de/bergische-gaerten - https://www.bonava.de/immobilien/bergisches-land/wuelfrath/bergische-gaerten?Status=ForSale&SortDirection=Asc&SortField=Name#unitsearch
Stichworte
Nutzfläche: 38,87 m², Anzahl der Schlafzimmer: 3, Anzahl der Badezimmer: 2, Anzahl Terrassen: 1
Anbieter der Immobilie
Firma Bonava Deutschland GmbH
Dein Ansprechpartner
Kontaktiere den Anbieter schriftlich, es ist keine Telefonnummer hinterlegt.
Online-ID: 2kxna5d
Referenznummer: 132862273#EXcPsm
Finde Angebote wie dieses
Hier geht es zu unserem Impressum, den Allgemeinen Geschäftsbedingungen, den Hinweisen zum Datenschutz und nutzungsbasierter Online-Werbung.