
Zwickauer Wohnungsbaugenossenschaft eG
Unser Vermietungsteam
(03 ···
Nr. anzeigenPreise & Kosten
Warum sehe ich diese Anzeige? – Du siehst diese Anzeige basierend auf Ihrer Navigation auf unserer Website und den Suchkriterien, die du verwendet hast.
Lage
Auf Kultur und Geschichte muss niemand verzichten, der in Pölbitz zu Hause ist. Hier stand die Wiege des Automobilbaues in Sachsen. Man kann sich Pölbitz ohne August Horch nicht denken. Auch das Konzert- und Ballhaus "Neue Welt" ist eine der ersten Adressen für anspruchsvolle und abwechslungsreiche Veranstaltungen in...
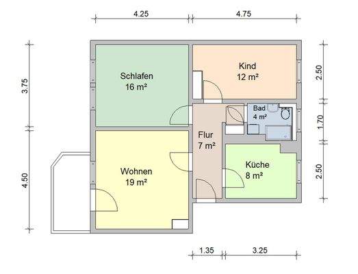
Die Wohnung
Wohnungslage
2. Geschoss
Bezug
sofort
Wohnanlage
Energie & Heizung
Warum sehe ich diese Anzeige? – Du siehst diese Anzeige basierend auf Ihrer Navigation auf unserer Website und den Suchkriterien, die du verwendet hast.
Energieausweistyp
Verbrauchsausweis
Gebäudetyp
Wohngebäude
Wesentliche Energieträger
Nahwärme
Endenergieverbrauch
53,40 kWh/(m²·a)
Details
Objektbeschreibung
Am Stadtrand und doch mittendrin - eine Wohnlage mit besonderem Flair, das ist Pölbitz.
Hier zu leben bedeutet vor allen Dingen, fast täglich neue städtebauliche Akzente zu entdecken. Unser Wohnhaus wurden nicht einfach saniert, sondern verbinden modernsten Komfort mit liebevoll erhaltenen Details.
Ausstattung
Schon gleich nach dem Betreten der Wohnung fällt Ihnen sicher die Gegensprechanlage ins Auge. Mit Ihr wird das Öffnen der Haustür zum Kinderspiel.
Hochwertige und strapazierfähige Boden- und Designbeläge veredeln sämtliche Wohnräume. Bad und Küche verfügen selbstverständlich über schicke Fliesen und moderne...
Weitere Informationen
Sonstiges
zzgl. Genossenschaftsanteile
Stichworte
Anzahl Balkone: 1
Sonstiges/Wohnen: Dachboden
Anbieter der Immobilie
Online-ID: 2kxnu5r
Referenznummer: 4288.530.1.32
Finde Angebote wie dieses
Hier geht es zu unserem Impressum, den Allgemeinen Geschäftsbedingungen, den Hinweisen zum Datenschutz und nutzungsbasierter Online-Werbung.