

Jutt & Disse Immobilien e.K.
Herr/Frau Björn Disse
072 ···
Nr. anzeigenPreise & Kosten
Provision für Käufer
3,57% inklusive der gesetzlichen MwSt. bezogen auf den Kaufpreis nach notariellem Vertragsabschluss.
Lage
Iffezheim ist eine charmante Gemeinde im Landkreis Rastatt in Baden-Württemberg, die sich durch ihre idyllische Lage und hervorragende Anbindung auszeichnet. Die Gemeinde liegt direkt an der Grenze zu Frankreich, nur wenige Kilometer von der Stadt Baden-Baden entfernt, und bietet somit eine attraktive Kombination aus...
Das Haus
Kategorie
Mehrfamilienhaus
Baujahr
1791
Bezug
nach Vereinbarung
Energie & Heizung
Warum sehe ich diese Anzeige? – Du siehst diese Anzeige basierend auf Ihrer Navigation auf unserer Website und den Suchkriterien, die du verwendet hast.
Weitere Energiedaten
Energieträger
Gas
Heizungsart
offener Kamin, Zentralheizung
Details
Objektbeschreibung
Liebevoll modernisiertes Fachwerkhaus mit 3 Pferdeboxen direkt in Iffezheim.
Das Diehm Haus mit historischer Bekanntheit wurde 1791 erbaut und ab dem Jahr 2012 überwiegend saniert und in den letzten Jahren fortlaufend modernisiert.
Ein schönes Wohnambiente, nutzbar als Einfamilienhaus mit Einliegerwohnung oder...
Ausstattung
Über die Jahre vollständig fortlaufend modernisiert:
Fachwerkhaus mit Außenwänden vorwiegend aus Lehm-Strohwickel
Dämmung aller Außenwände von innen in 2012/13 mit 15 cm starker Mineralfaserwolle
Dämmung des Dachgeschosses mit 30 cm starker Mineralfaserwolle in 2012/13
Erneuerung 2-fach Kunststoff...
Preisinformation
2 Stellplätze
Weitere Informationen
Sonstiges
Die vorstehenden, freibleibenden Angaben sind nach bestem Wissen erstellt. Da sie jedoch auf Auskünften und Unterlagen Dritter basieren, können wir für deren Richtigkeit und Vollständigkeit keine Gewähr übernehmen.
Stichworte
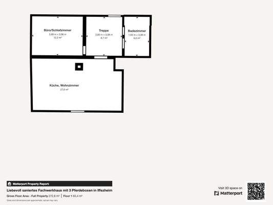
Nutzfläche: 300,00 m², vermietbare Fläche: 288,00 m², Anzahl der Schlafzimmer...
Anbieter der Immobilie
Jutt & Disse Immobilien e.K.
Im Weingarten 22, 76547 Sinzheim

Online-ID: 2kxv55b
Referenznummer: 3801
Finde Angebote wie dieses
Hier geht es zu unserem Impressum, den Allgemeinen Geschäftsbedingungen, den Hinweisen zum Datenschutz und nutzungsbasierter Online-Werbung.