
Dr. Maire Bau Projektmanagement GmbH
Herr Wieland von der Oelsnitz
053 ···
Nr. anzeigenPreise & Kosten
Provision für Käufer
3,57% inkl. MwSt.
Lage
Schwülper- Ortsteil Rothemühle ist ein ruhige Gemeinde im Landkreis Gifhorn.
Der Ort verfügt über eine Kindertagesstätte und einen Sportplatz.
Im benachbarten Groß Schwülper befinden sich diverse Einkaufsmöglichkeiten, Schulen, Ärzte und Apotheken, ein Fitnessstudio und vieles mehr.
Das Landschutzgebiet "Nördliche...
Das Haus
Kategorie
Einfamilienhaus
Energie & Heizung
Warum sehe ich diese Anzeige? – Du siehst diese Anzeige basierend auf Ihrer Navigation auf unserer Website und den Suchkriterien, die du verwendet hast.
Energieausweistyp
Bedarfsausweis
Gebäudetyp
Wohngebäude
Gültigkeit
16.10.2023 bis 01.06.2035
Effizienzklasse
D
Endenergiebedarf
125,09 kWh/(m²·a)
Details
Objektbeschreibung
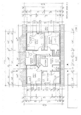
EG: Diele, Bad, Abstellraum, Einbauküche, Esszimmer, Luftraum, Wohnzimmer mit Ausgang auf die Terrasse und in den Garten
OG: Galerie, Bad, 4 Schlafzimmer
Das Haus ist voll unterkellert, siehe Grundriss.
Ausstattung
Dieses gepflegte Einfamilienhaus überzeugt durch seine harmonische Raumaufteilung und ist bestens ausgestattet. Auf zwei Etagen bietet das Haus mit fünf Zimmern großzügige, lichtdurchflutete Wohnräume - ideal für Familien, Naturliebhaber oder alle, die Ruhe und Komfort vereinen möchten. Es befindet sich im ruhig gelegenen...
Weitere Informationen
Sonstiges
Weitere Informationen erhalten Sie über unser Büro.
Anbieter der Immobilie

Dr. Maire Bau Projektmanagement GmbH
Im Brink 4, 38179 Schwülper
Online-ID: 2ky2a5p
Referenznummer: EFH-018-2025
Finde Angebote wie dieses
Hier geht es zu unserem Impressum, den Allgemeinen Geschäftsbedingungen, den Hinweisen zum Datenschutz und nutzungsbasierter Online-Werbung.