
HAUKE HINZE IMMOBILIEN
Herrn Hauke Hinze
+49 ···
Nr. anzeigenPreise & Kosten
Provision für Käufer
5% von Kaufpreis inkl. MwSt.
Lage
Die Einfamilienvilla befindet sich am oberen Ende der Privatstraße Via delle Palme (Sasso Rosso) im Ortsteil Cressogno der Comune Valsolda.
Cressogno ist eine Fraktion der italienischen Gemeinde Valsolda in der Provinz Como, Lombardei, Italien.
Schon Mailänder Bischöfe hatten in Cressogno ihre...
Das Haus
Kategorie
Villa
Baujahr
1995
Energie & Heizung
Warum sehe ich diese Anzeige? – Du siehst diese Anzeige basierend auf Ihrer Navigation auf unserer Website und den Suchkriterien, die du verwendet hast.
Weitere Energiedaten
Haustyp
Massivhaus
Energieträger
Öl
Heizungsart
Fußbodenheizung, offener Kamin
Details
Objektbeschreibung
Die Villa dell´Arte ist ein im Jahr 1995 von einem international renommierten Künstler entworfener und bis heute selbst bewohnter Wohntraum in fantastischer Lage.
Die einzigartige Lage, der unglaubliche Seeblick, die rundum Besonnung sowie die klassisch moderne und hochwertige Innengestaltung, ebenso wie die geniale...
Ausstattung
Der traumhaft angelegte Garten verfügt über viele kleine Sitz- und Loungeecken, so dass immer der perfekte Platz zur Verfügung steht. Die Bewaldung der umliegenden Berge, sowie die Bepflanzung der Gärten mit Palmen (nördlichster Punkt, an dem diese noch wachsen) sorgt für mediterranes Flair. Der kleine Außenpool geht über die...
Preisinformation
2 Stellplätze
2 Garagenstellplätze
Weitere Informationen
Sonstiges
Die angegebene Wohnfläche von 342,5m² stellt die zusammengefasste Wohn- und Nutzfläche nach italienischer Berechnung dar.
Stichworte
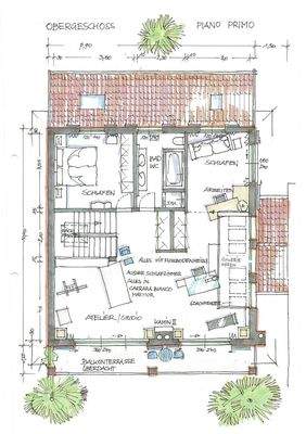
Garage vorhanden, Anzahl der Schlafzimmer: 4, Anzahl der Badezimmer: 2, Anzahl der separaten WCs: 2, Anzahl Balkone: 1, Anzahl Terrassen: 1, 3 Etagen, Lage im Wohngebiet...
Anbieter der Immobilie
Online-ID: 2ky2f5q
Referenznummer: HH201518#Itrgh
Finde Angebote wie dieses
Hier geht es zu unserem Impressum, den Allgemeinen Geschäftsbedingungen, den Hinweisen zum Datenschutz und nutzungsbasierter Online-Werbung.