

Amoreal GmbH
Frau Gina Hennies
040 ···
Nr. anzeigenPreise & Kosten
Provision für Käufer
3,57 % inkl. ges. MwSt. inkl. MwSt.
Lage
Dieses wundervolle Haus befindet sich in idealer Lage im Stadtteil Langenhorn, im Hamburger Bezirk Nord. Der Stadtteil ist vor allem bei Familien sehr beliebt.
Die Lage des Objekts ist innerhalb Langenhorns sehr gut. Nahversorger erreichen Sie nach nur ca. 350 m. Auch die Anbindung an den öffentlichen Nahverkehr ist nur ca...
Das Haus
Kategorie
Doppelhaushälfte
Energie & Heizung
Warum sehe ich diese Anzeige? – Du siehst diese Anzeige basierend auf Ihrer Navigation auf unserer Website und den Suchkriterien, die du verwendet hast.
Energieausweistyp
Verbrauchsausweis
Gebäudetyp
Wohngebäude
Baujahr laut Energieausweis
2018
Wesentliche Energieträger
GAS
Gültigkeit
bis 07.09.2035
Effizienzklasse
B
Endenergieverbrauch
52,20 kWh/(m²·a)
Weitere Energiedaten
Energieträger
Gas
Heizungsart
Fußbodenheizung, Zentralheizung
Details
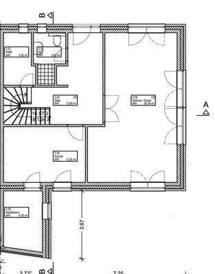
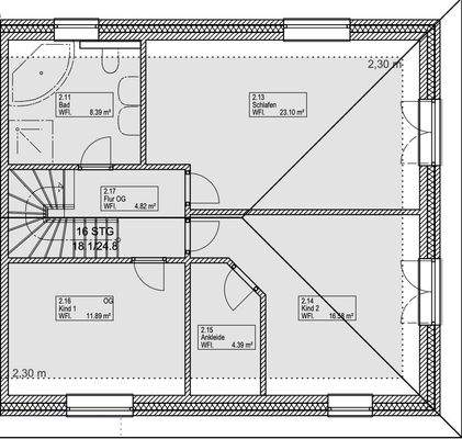
Objektbeschreibung
Neuwertige Doppelhaushälfte bietet Platz für Ihre ganze Familie.
Der durchdachte Eingangsbereich mit ausreichend Platz für eine Garderobe, einem Gäste-WC mit Dusche und einem Hauswirtschaftsraum, eröffnet den Zutritt zu sämtlichen Räumen des Erdgeschosses.
Die Küche präsentiert sich modern: ausgestattet mit...
Ausstattung
- durchdachter, familienfreundlicher Grundriss
- großer Gartenanteil
- Außenstellplatz
- KfW55 Standard
- 3-fach verglaste Fenster mit Einbruchsschutz
- Solarkollektoren auf dem Dach
- EDV-Verkabelung
- elektrische Außenrolläden
- Alarmanlage
- Fußbodenheizung...
Weitere Informationen
Sonstiges
Rechtshinweis/Haftungsausschluss:
Dieses Exposé wurde mit größtmöglicher Sorgfalt zusammengestellt. Trotzdem kann keine Haftung für die Richtigkeit, Vollständigkeit und Aktualität der Angaben übernommen werden. Alle Angaben erfolgen ohne Gewähr. Die Darstellungen sind unverbindlich und dienen lediglich der...
Anbieter der Immobilie

Online-ID: 2kyb55q
Referenznummer: GiH-2025119614
Finde Angebote wie dieses
Hier geht es zu unserem Impressum, den Allgemeinen Geschäftsbedingungen, den Hinweisen zum Datenschutz und nutzungsbasierter Online-Werbung.