
KAVEH Immobilien GmbH & Co. KG
Herr Kasra Kaveh
004 ···
Nr. anzeigenPreise & Kosten
Provision für Käufer
provisionsfrei
Lage
Die Gewerbefläche befindet sich in exzellenter Lage an der Rosenstraße 50 in Oldenburg, direkt zwischen der Innenstadt und dem Hauptbahnhof. Diese zentrale Position im Oldenburger Stadtring gewährleistet eine optimale Erreichbarkeit sowie eine hohe Sichtbarkeit und Frequenz. Sowohl die Fußgängerzone als auch der Hauptbahnhof...
Das Renditeobjekt
Baujahr
1972
Bezug
Sofort verfügbar
Energie & Heizung
Warum sehe ich diese Anzeige? – Du siehst diese Anzeige basierend auf Ihrer Navigation auf unserer Website und den Suchkriterien, die du verwendet hast.
Wärme
Energieausweistyp
Verbrauchsausweis
Gebäudetyp
Nicht-Wohngebäude
Baujahr laut Energieausweis
1972
Wesentliche Energieträger
GAS
Gültigkeit
bis 12.12.2033
Endenergieverbrauch (Wärme)
151,90 kWh/(m²·a)
Weitere Energiedaten
Energieträger
Gas
Heizungsart
Zentralheizung
Details
Objektbeschreibung
Willkommen in dieser großzügigen und modernen Gewerbeeinheit mit ca. 490 m² Gesamtfläche im Erdgeschoss eines Wohn- und Geschäftshauses am Oldenburger Stadtring.
Die ehemalige Bankfiliale erstreckt sich über zwei zusammenhängende Einheiten (ca. 380 m² und 110 m²) und überzeugt durch eine moderne Gestaltung. Die beiden...
Ausstattung
Die Heizung des Objektes wurde im Juli 2024 erneuert.
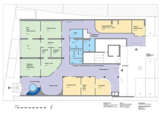
Die beigefügten Grundrisse dienen lediglich zur Vorstellung. Die Grundrisse können bei Bedarf gerne durch unseren Architekten individuell auf Ihre Wünsche und Vorstellungen gestaltet werden.
Weitere Informationen
Sonstiges
Bitte haben Sie Verständnis, dass wir nur Anfragen mit vollständig angegebenem Namen, Adresse und Telefonnummer bearbeiten können.
Sämtliche Fotos, Texte und grafische Darstellungen (Grundrisse) sind Eigentum von der Firma KAVEH Immobilien GmbH & Co. KG und dürfen nicht von Dritten verwendet oder...
Anbieter der Immobilie
KAVEH Immobilien GmbH & Co. KG
Donnerschweer Straße 79, 26123 Oldenburg
Online-ID: 2kyjp54
Referenznummer: 69 364
Finde Angebote wie dieses
Hier geht es zu unserem Impressum, den Allgemeinen Geschäftsbedingungen, den Hinweisen zum Datenschutz und nutzungsbasierter Online-Werbung.