

Schwabenhaus Schwarzwald - Michael Grafmüller - Handelsvertretung für die Schwabenhaus GmbH
Herr Michael Grafmüller
017 ···
Nr. anzeigenPreise & Kosten
Provision für Käufer
provisionsfrei
Lage
Das Grundstück befindet sich im idyllischen Ortsteil Grafenhausen der Gemeinde Kappel-Grafenhausen, gelegen im südwestlichen Baden-Württemberg, unmittelbar an der Grenze zum Elsass (Frankreich). Grafenhausen besticht durch seine naturnahe, ruhige Wohnlage im Ortenaukreis und bietet gleichzeitig eine hervorragende Anbindung an...
Das Haus
Kategorie
Einfamilienhaus
Energie & Heizung
Warum sehe ich diese Anzeige? – Du siehst diese Anzeige basierend auf Ihrer Navigation auf unserer Website und den Suchkriterien, die du verwendet hast.
Weitere Energiedaten
Heizungsart
Fußbodenheizung
Details
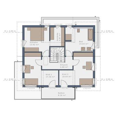
Objektbeschreibung
Herzlich willkommen in Ihrem technologisch hochwertigen Zuhause, wo Innovation und Komfort Hand in Hand gehen. Dieses Meisterwerk vereint modernste Technologie mit elegantem Design und erfüllt selbst die anspruchsvollsten Standards. Die Wohnräume sind mit innovativer Technologie ausgestattet, die den Komfort maximieren. Ihr...
Ausstattung
Neben kurzen Bauzeiten, innovativer Haustechnik, attraktiver Architektur und hochwertiger Manufaktur-Qualität bietet Ihnen das angebotene Schwabenhaus im "Green-Edition" All-Inclusive-Paket folgende Mehr-Werte:
- Bodenplatte inkl. Effizienzhaus 40 Perimeter-Dämmung unterhalb der Bodenplatte sowie stirnseitig
-...
Weitere Informationen
Sonstiges
Das Haus ist projektiert inkl. Grundstück. Das Grundstück wird in Kommission angeboten bzw. direkt von Dritten verkauft. Daher kann der o.g. Preis aufgrund aktueller Marktsituationen schwanken.
Die Bauabwicklung kann kurzfristig nach Grundstückserwerb begonnen werden. Bilder zeigen möglicherweise...
Anbieter der Immobilie
Schwabenhaus Schwarzwald - Michael Grafmüller - Handelsvertretung für die Schwabenhaus GmbH
Blumenstr. 16, 77972 Mahlberg

Online-ID: 2kymz57
Referenznummer: SH-334000-Kappel-Grafenha
Finde Angebote wie dieses
Hier geht es zu unserem Impressum, den Allgemeinen Geschäftsbedingungen, den Hinweisen zum Datenschutz und nutzungsbasierter Online-Werbung.