
City Immobilien GmbH
Frau Heidi Zant
004 ···
Nr. anzeigenPreise & Kosten
Provision für Käufer
Es fällt keine zusätzliche Käuferprovision an
Lage
Das Grundstück Dr.-Dobereiner-Weg 5, Fl.Nr.2200/3, befindet sich im Stadtbereich Tirschenreuth, südlich der Sternwarte, Ortsteil Ziegelanger.
Das Grundstück befindet sich in einem gewachsenen Siedlungsgebiet. Die gewachsene Nachbarstruktur bietet hierbei eine hervorragende Voraussetzung und Vorgabe für eine nachhaltige und...
Die Wohnung
Wohnungslage
Erdgeschoss
Wohnanlage
Energie & Heizung
Warum sehe ich diese Anzeige? – Du siehst diese Anzeige basierend auf Ihrer Navigation auf unserer Website und den Suchkriterien, die du verwendet hast.
Energieausweistyp
Bedarfsausweis
Gebäudetyp
Wohngebäude
Baujahr laut Energieausweis
2025
Wesentliche Energieträger
LUFTWP
Gültigkeit
bis 20.01.2035
Effizienzklasse
A+
Endenergiebedarf
14,60 kWh/(m²·a)
Weitere Energiedaten
Energieträger
Elektro
Heizungsart
Luft-/Wasser-Wärmepumpe
Details
Objektbeschreibung
Die Wohnungen im Neubauprojekt befinden sich im Gebiet der Sternwarte in der schönen Kreisstadt Tirschenreuth in einer kleinen Wohnanlage. Das Stadtgebiet "Sternwarte" ist eine besonders beliebte Wohngegend.
Vorallem die großzügige, freie Sicht mit Blick über die Dächer von Tirschenreuth überzeugt hier.
Die insgesamt 8...
Ausstattung
- 2-bis 4-Zimmer- Wohnungen mit ca. 62m² bis ca. 120m² Wohnfläche
- Jede Wohnung verfügt über eine Terrasse oder Balkon
- Erdgeschosswohnungen mit eigenem Gartenanteil
- Ein Stellplatz je Wohnung
- Zentralheizung mit Luft-Wasser-Wärmepumpe
- KfW 55 EE
Preisinformation
1 Tiefgaragenstellplatz
Weitere Informationen
Sonstiges
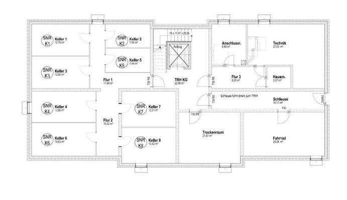
Ein eigenes Kellerabteil bietet zusätzlichen Stauraum. Weiter befindet sich im Keller ein Fahrrad- und Wäscheraum, der gemeinschaftlich genutzt werden kann.
Die Müll- und Papiertonnen sind in dem dafür vorgesehenen Nebengebäude auf dem Grundstück untergebracht.
Auch auf die Sicherheit wurde viel Wert...
Anbieter der Immobilie

City Immobilien GmbH
Wörthstraße 9 , 92637 Weiden
Online-ID: 2kynh5u
Referenznummer: 4166_2
Finde Angebote wie dieses
Hier geht es zu unserem Impressum, den Allgemeinen Geschäftsbedingungen, den Hinweisen zum Datenschutz und nutzungsbasierter Online-Werbung.