
Finest Properties International - Berlin Pankow
Frau Marie Banach
+49 ···
Nr. anzeigenPreise & Kosten
Provision für Käufer
2,38% inkl. ges. MwSt
Lage
Dieses Neubau-Einfamilienhaus befindet sich in einer idyllischen und ruhigen Lage des Bezirkes Berlin-Pankow. Die Gegend ist von zahlreichen Bäumen gesäumt und schafft ein erholendes Wohnambiente. Nördlich vor der Stadtgrenze der Hauptstadt, bietet Ihnen diese Lage ein grünes Paradies für Familien. Geprägt durch seine Villen...
Das Haus
Kategorie
Einfamilienhaus
Baujahr
2025
Energie & Heizung
Warum sehe ich diese Anzeige? – Du siehst diese Anzeige basierend auf Ihrer Navigation auf unserer Website und den Suchkriterien, die du verwendet hast.
Energieausweistyp
Bedarfsausweis
Gebäudetyp
Wohngebäude
Wesentliche Energieträger
Strom
Gültigkeit
11.08.2025 bis 10.08.2035
Endenergiebedarf
23,90 kWh/(m²·a)
Weitere Energiedaten
Energieträger
Elektro
Details
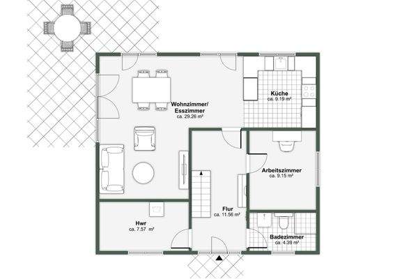
Objektbeschreibung
In naturnaher und zugleich verkehrsgünstiger Lage von Französisch Buchholz entsteht dieses hochwertige Einfamilienhaus, das mit ca. 137 m² Wohnfläche auf zwei Etagen großzügigen Raum für modernes Familienleben bietet.
Das Erdgeschoss überzeugt durch seinen offen gestalteten Wohn-, Ess- und Küchenbereich, der viel Platz...
Ausstattung
TEILFLÄCHE B
ERDGESCHOSS:
- Diele mit Treppenaufgang zum Obergeschoss
- taghelles Gäste-WC mit Fenster und Fußbodenheizung
- großzügig geschnittener Küchen-, Wohn- und Essbereich
- bodentiefe Kunststoff-Fenster
- Hausanschlussraum
OBERGESCHOSS:
- Schlafzimmer
- zwei Kinder- /Gästezimmer mit...
Weitere Informationen
Stichworte
Anzahl der Schlafzimmer: 4, Anzahl der Badezimmer: 2, Bundesland: Berlin
Anbieter der Immobilie
Finest Properties International - Berlin Pankow
Wollankstraße 135, 13187 Berlin
Online-ID: 2kyqn5m
Referenznummer: Kensington_KBP_569
Finde Angebote wie dieses
Hier geht es zu unserem Impressum, den Allgemeinen Geschäftsbedingungen, den Hinweisen zum Datenschutz und nutzungsbasierter Online-Werbung.