
ImmoTek Immobilien e.K.
Herr/Frau Anton Teklic
030 ···
Nr. anzeigenPreise & Kosten
Kaution
3 Warmmieten
Provision für Mieter
provisionsfreie Vermietung
Warum sehe ich diese Anzeige? – Du siehst diese Anzeige basierend auf Ihrer Navigation auf unserer Website und den Suchkriterien, die du verwendet hast.
Lage
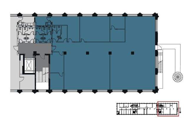
Das Büro befindet sich im 1.OG
Büro-/Praxisfläche
Kategorie
Bürofläche
Baujahr
1927
Bezug
Nach Vereinbarung
Energie & Heizung
Warum sehe ich diese Anzeige? – Du siehst diese Anzeige basierend auf Ihrer Navigation auf unserer Website und den Suchkriterien, die du verwendet hast.
Wärme
Strom
Energieausweistyp
Bedarfsausweis
Gebäudetyp
Nicht-Wohngebäude
Wesentliche Energieträger
FERN
Gültigkeit
28.08.2024 bis 01.08.2034
Endenergiebedarf (Wärme)
136,00 kWh/(m²·a)
Endenergiebedarf (Strom)
30,00 kWh/(m²·a)
Weitere Energiedaten
Energieträger
Fernwärme
Heizungsart
Zentralheizung
Details
Objektbeschreibung
Das Büro besteht aus zwei großen Büroräumen und 5 Kleineren abgeschlossenen Büroräumen. Zur Küche gehört auch ein größeres Esszimmer. Es gibt eine Toilette im Büro und zwei im Hausflur beim Eingang zum Büro. Steckdosen und EDV Anschlüsse befinden sich in Bodentanks
Ausstattung
- Altbau
- Hohe Decken ca. 4,40 m
- Fahrstuhl
- Teppichboden mit teils Parkettboden in allen Räumen
- Serverraum
- WC im Büro
- Herren und Damen WC im Flur
- Zentralheizung
- Einbauküche mit angeschlossenen Esszimmer
- Parkplätze können mit angemietet werden
Preisinformation
9 Stellplätze, Miete je: 50,00 EUR
Nettokaltmiete: 5.694,00 EUR
Weitere Informationen
Stichworte
Stellplatz vorhanden, Gesamtfläche: 438,00 m², Büroteilfläche: 438,00 m²
Anbieter der Immobilie
ImmoTek Immobilien e.K.
Galvanistr.3, 10587 Berlin
Online-ID: 2kyrh55
Referenznummer: ITI 12242
Finde Angebote wie dieses
Hier geht es zu unserem Impressum, den Allgemeinen Geschäftsbedingungen, den Hinweisen zum Datenschutz und nutzungsbasierter Online-Werbung.