
Sparda Immobilien GmbH
Herr Kai Apel
004 ···
Nr. anzeigenPreise & Kosten
Provision für Käufer
3,57 % inkl. MwSt.
Lage
Fenster:
Kunststofffenster doppelt isolierverglast aus 2011
Heizung und Warmwasser:
Buderus Gasheizung >30 Jahre
Bodenbeläge:
Fliesen - Echtsteinzeug, Laminat und Teppich
Küche:
sanierungsbedürftig
Bäder:
Bad en suite im Erdgeschoss
Gäste-WC und Duschbad in...
Das Haus
Kategorie
Einfamilienhaus
Baujahr
1971
Energie & Heizung
Warum sehe ich diese Anzeige? – Du siehst diese Anzeige basierend auf Ihrer Navigation auf unserer Website und den Suchkriterien, die du verwendet hast.
Energieausweistyp
Bedarfsausweis
Gebäudetyp
Wohngebäude
Baujahr laut Energieausweis
2009
Wesentliche Energieträger
GAS
Gültigkeit
bis 15.05.2035
Effizienzklasse
F
Endenergiebedarf
192,80 kWh/(m²·a)
Weitere Energiedaten
Energieträger
Gas
Heizungsart
offener Kamin
Details
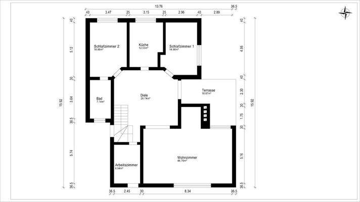
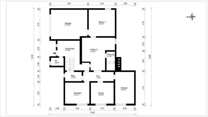
Objektbeschreibung
Sie suchen nach einer markanten Immobilie mit viel Platz und großzügigen Zimmern? Mit diesem Bungalow aus dem Baujahr 1971 bieten wir Ihnen 210 m² Wohnfläche auf zwei Ebenen. Hinzu kommen die Kellerräume und die im Souterrain befindliche Garage.
Das Grundstück mit 1.256 m² ist leicht abschüssig, weshalb die Immobilie...
Ausstattung
Fenster:
Kunststofffenster doppelt isolierverglast aus 2011
Heizung und Warmwasser:
Buderus Gasheizung >30 Jahre
Bodenbeläge:
Fliesen - Echtsteinzeug, Laminat und Teppich
Küche:
sanierungsbedürftig
Bäder:
Bad en suite im Erdgeschoss
Gäste-WC und Duschbad in...
Preisinformation
2 Tiefgaragenstellplätze
Weitere Informationen
Stichworte
Tiefgarage vorhanden, Fahrradraum, Nutzfläche: 75,00 m², Anzahl der Schlafzimmer: 5, Anzahl der Badezimmer: 2, Anzahl der separaten WCs: 1, Anzahl Terrassen: 1, Balkon-Terrassen-Fläche: 17,00 m², 2 Etagen
Anbieter der Immobilie
Sparda Immobilien GmbH
Beim Strohhause 27, 20097 Hamburg
Online-ID: 2kz245x
Referenznummer: KA_9116
Finde Angebote wie dieses
Hier geht es zu unserem Impressum, den Allgemeinen Geschäftsbedingungen, den Hinweisen zum Datenschutz und nutzungsbasierter Online-Werbung.