

Jones Lang LaSalle SE - Office Leasing Rhein-Ruhr
Herr Johannes Keck
+49 ···
Nr. anzeigenPreise & Kosten
Provision für Mieter
provisionspflichtig für den Mieter/Käufer
Warum sehe ich diese Anzeige? – Du siehst diese Anzeige basierend auf Ihrer Navigation auf unserer Website und den Suchkriterien, die du verwendet hast.
Lage
Das linksrheinische Duisburger Hafengelände logport gilt als europäische Logistikdrehscheibe. Es liegt im Duisburger Westen im Stadtbezirk Rheinhausen und ist über die Autobahnen A 40 und A 57 an das überregionale Straßennetz angeschlossen. Auf dem Gelände des 1993 geschlossenen Krupp-Stahlwerkes haben sich zahlreiche...
Büro-/Praxisfläche
Kategorie
Bürofläche
Baujahr
1956
Bezug
Sofort
Energie & Heizung
Warum sehe ich diese Anzeige? – Du siehst diese Anzeige basierend auf Ihrer Navigation auf unserer Website und den Suchkriterien, die du verwendet hast.
Wärme
Strom
Energieausweistyp
Verbrauchsausweis
Gebäudetyp
Nicht-Wohngebäude
Gültigkeit
24.03.2022 bis 23.03.2032
Endenergieverbrauch (Wärme)
71,20 kWh/(m²·a)
Endenergieverbrauch (Strom)
25,80 kWh/(m²·a)
Details
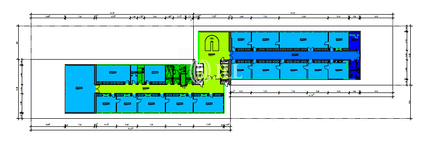
Objektbeschreibung
Die klimatisierten Büroflächen sind in einem sehr guten Zustand und sind sofort bezugsfertig. Die flexibel gestaltbaren und hellen Büroflächen bieten mit ihrer bedarfsgerechten Ausstattung sowie dem repräsentativen Erscheinungsbild ein rundum gelungenes Arbeitsumfeld.
Ausstattung
- teilweise Klimatisierung vorhanden
- elektronische Zugangskontrolle
Preisinformation
11 Stellplätze, Miete je: 45,00 EUR
Weitere Informationen
Stichworte
Gesamtfläche: 4.265,11 m²
Sonstiges: EDV-Verkabelung
Anbieter der Immobilie
Jones Lang LaSalle SE - Office Leasing Rhein-Ruhr
Grugaplatz 2-4, 45131 Essen

Online-ID: 2kzg257
Referenznummer: 4@of26406@14@0
Finde Angebote wie dieses
Hier geht es zu unserem Impressum, den Allgemeinen Geschäftsbedingungen, den Hinweisen zum Datenschutz und nutzungsbasierter Online-Werbung.