

DAHLER Potsdam | Berlin-Wannsee | Kleinmachnow
Herr Patrik Zimmermann
033 ···
Nr. anzeigenPreise & Kosten
Kaution
3 Nettokaltmieten
Warum sehe ich diese Anzeige? – Du siehst diese Anzeige basierend auf Ihrer Navigation auf unserer Website und den Suchkriterien, die du verwendet hast.
Lage
Beelitz ist eine liebens- und lebenswerte Kleinstadt mit ca. 13.000 Einwohnern vor den Toren Berlins und Potsdams. Die Stadt blickt mit ihrer ersten urkundlichen Erwähnung im Jahr 997 auf eine mehr als 1.000-jährige Geschichte zurück, die sich vor allem im historischen Stadtbild widerspiegelt. Heute verdankt Beelitz seine...
Die Wohnung
Wohnungslage
Dachgeschoss
Wohnanlage
Energie & Heizung
Warum sehe ich diese Anzeige? – Du siehst diese Anzeige basierend auf Ihrer Navigation auf unserer Website und den Suchkriterien, die du verwendet hast.
Energieausweistyp
Bedarfsausweis
Gebäudetyp
Wohngebäude
Baujahr laut Energieausweis
2022
Wesentliche Energieträger
OEL
Gültigkeit
bis 03.11.2032
Effizienzklasse
D
Endenergiebedarf
109,50 kWh/(m²·a)
Weitere Energiedaten
Energieträger
Öl
Heizungsart
Zentralheizung
Details
Objektbeschreibung
Willkommen in diesem exquisiten Wohn- und Geschäftshaus im Heimatstil, welches ca. 1890 erbaut wurde. Nach einer hochwertigen Sanierung im Jahr 2022 erstrahlt diese Wohnung im neuen Glanz und bietet Ihnen ein hochwertiges Wohnerlebnis. Die Kombination aus historischem Charme und modernem Komfort verleiht diesem Zuhause einen...
Ausstattung
. Wohn- und Geschäftshaus im Heimatstil, Baujahr: ca. 1890
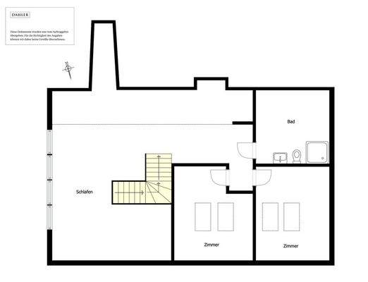
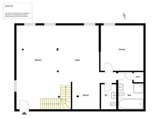
. Ruhige und helle 4-Zimmer-Maisonettewohnung mit ca. 130 m² Wohnfläche im Dachgeschoss
. Hochwertig saniert im Jahr 2022
. Zwei hochwertige Bäder und ein Gäste-WC
. Vier sehr gut geschnittene Wohnräume
. Großzügiger Wohnbereich mit ca. 54 m² und...
Weitere Informationen
Sonstiges
Ihre Werte sind bei uns in besten Händen
DAHLER ist auf die Vermittlung hochwertiger Wohnimmobilien in bevorzugten Lagen spezialisiert. Seit über 30 Jahren wird unser Unternehmen von Kirsten und Björn Dahler geführt und setzt mit Innovationskraft und Servicequalität Maßstäbe in der Branche. Unsere mehr als...
Anbieter der Immobilie

Online-ID: 2kznd59
Referenznummer: D-WAN8604-Miete-1
Finde Angebote wie dieses
Hier geht es zu unserem Impressum, den Allgemeinen Geschäftsbedingungen, den Hinweisen zum Datenschutz und nutzungsbasierter Online-Werbung.