
amer immobilien gmbh
Herr Lutz Amer
091 ···
Nr. anzeigenPreise & Kosten
Provision für Käufer
Bei Abschluss eines Kaufvertrages erlauben wir uns Ihnen 3,57% inkl. MwSt. aus dem beurkundeten Kaufpreis als Provision in Rechnung zu stellen.
Lage
Das einzigartig gepflegte und großzügige Anwesen befindet sich im Ortsteil Weiher, dem östlichen Teil von Uttenreuth. Die Bewohner schätzen die ruhige, ländliche Atmosphäre des Ortes, der gleichzeitig eine gute Anbindung an die umliegenden Städte Forchheim, Erlangen und Nürnberg in der Metropolregion bietet. Weiher ist ein...
Das Haus
Kategorie
Einfamilienhaus
Baujahr
1988
Energie & Heizung
Warum sehe ich diese Anzeige? – Du siehst diese Anzeige basierend auf Ihrer Navigation auf unserer Website und den Suchkriterien, die du verwendet hast.
Energieausweistyp
Verbrauchsausweis
Gebäudetyp
Wohngebäude
Baujahr laut Energieausweis
1988
Wesentliche Energieträger
Öl
Gültigkeit
17.06.2024 bis 16.06.2034
Effizienzklasse
B
Endenergieverbrauch
70,70 kWh/(m²·a) - Warmwasser enthalten
Weitere Energiedaten
Heizungsart
Zentralheizung
Details
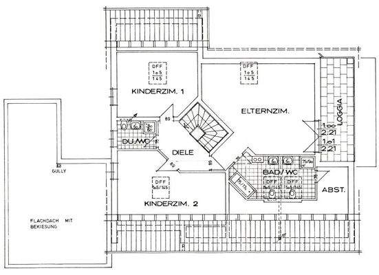
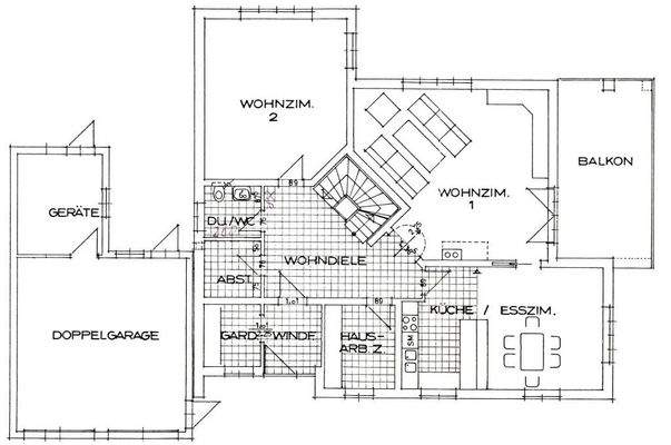
Objektbeschreibung
Im Erdgeschoss befinden sich zwei Wohnzimmer, eine großzügige Küche mit Essbereich, ein praktischer Abstellraum, ein kleines Arbeitszimmer sowie das Gäste-WC.
Vom Wohnzimmer 1 aus gelangt man auf einen größeren Balkon, der auf der Südseite des Hauses verläuft und bis zur Balkontür des zweiten Wohnzimmers reicht - die...
Preisinformation
2 Garagenstellplätze, Kaufpreis je: 15.000,00 EUR
Anbieter der Immobilie

amer immobilien gmbh
Spardorfer Str. 150, 91054 Erlangen
Online-ID: 2kzqa5p
Referenznummer: A2288
Finde Angebote wie dieses
Hier geht es zu unserem Impressum, den Allgemeinen Geschäftsbedingungen, den Hinweisen zum Datenschutz und nutzungsbasierter Online-Werbung.