
Covivio Immobilien GmbH
Frau Sandra Schlüter
+49 ···
Nr. anzeigenPreise & Kosten
in Warmmiete enthalten
Kaution
16.755,00
Provision für Mieter
provisionsfrei
Warum sehe ich diese Anzeige? – Du siehst diese Anzeige basierend auf Ihrer Navigation auf unserer Website und den Suchkriterien, die du verwendet hast.
Büro-/Praxisfläche
Baujahr
1966
Bezug
01.11.2026
Geschoss
Erdgeschoss
Energie & Heizung
Warum sehe ich diese Anzeige? – Du siehst diese Anzeige basierend auf Ihrer Navigation auf unserer Website und den Suchkriterien, die du verwendet hast.
Wärme
Energieausweistyp
Bedarfsausweis
Gebäudetyp
Nicht-Wohngebäude
Baujahr laut Energieausweis
1966
Wesentliche Energieträger
FERN
Gültigkeit
seit 23.05.2018
Endenergiebedarf (Wärme)
566,00 kWh/(m²·a)
Weitere Energiedaten
Energieträger
Fernwärme
Details
Objektbeschreibung
Die Einheit ist noch bis 31.10.2026 offiziell vermietet. Eine vorzeitige Übernahme ist nach Absprache möglich.
Vereinbaren Sie jetzt gleich unter 0341 31 959 30 62 einen Besichtigungstermin. Besichtigungen sind ab sofort möglich. Verfügbarkeit nach Abstimmung mit aktuellem Mieter.
Der aktuelle Mieter könnte die...
Ausstattung
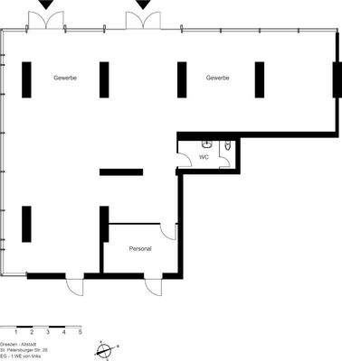
Großzügig geschnittenes Ladengeschäft mit vollverglasten Außenwänden - ideal für flexible Raumgestaltung.
Die exklusiven Schaufenster bringen viel natürliches Tageslicht in die vakanten Erdgeschossflächen. Die Raumhöhen sind beeindruckend.
Die große Ladenfläche, das WC, sowie die Personalräume die auch als...
Preisinformation
Nettokaltmiete: 5.585,00 EUR
Weitere Informationen
Sonstiges
Covivio - eines der größten Immobilienunternehmen in Europa
überwindet Grenzen, möchte überall den gleichen, bestmöglichen
Service bieten und diesen auch in Zukunft auf die sich ändernden
Bedürfnisse ihrer Kund:innen ausrichten. In Deutschland besitzt und
bewirtschaftet Covivio über 41.000...
Anbieter der Immobilie

Covivio Immobilien GmbH
Essener Straße 66, 46047 Oberhausen
Online-ID: 2kzvc5l
Referenznummer: C459.019202-124
Finde Angebote wie dieses
Hier geht es zu unserem Impressum, den Allgemeinen Geschäftsbedingungen, den Hinweisen zum Datenschutz und nutzungsbasierter Online-Werbung.