

Grossmann & Berger GmbH
Herr Haiko Stephan
+49 ···
Nr. anzeigenPreise & Kosten
Provision für Käufer
3,57 % inkl. MwSt.
Lage
Besonderheit: Bestlage in Großhansdorf! Diese besondere Immobilie befindet sich in bester zentraler Lage von Großhansdorf, einer attraktiven Wohngemeinde mit sehr guter Verkehrsanbindung im nordöstlichen Speckgürtel von Hamburg, in der es sich in wunderbar ländlichem Umfeld behütet leben lässt. Aufgrund der naturverbundenen...
Das Haus
Kategorie
Einfamilienhaus
Baujahr
1960
Bezug
nach Vereinbarung
Energie & Heizung
Warum sehe ich diese Anzeige? – Du siehst diese Anzeige basierend auf Ihrer Navigation auf unserer Website und den Suchkriterien, die du verwendet hast.
Energieausweistyp
Bedarfsausweis
Gebäudetyp
Wohngebäude
Baujahr laut Energieausweis
2011
Wesentliche Energieträger
OEL
Gültigkeit
bis 23.05.2035
Effizienzklasse
H
Endenergiebedarf
269,19 kWh/(m²·a)
Weitere Energiedaten
Energieträger
Öl
Heizungsart
Zentralheizung
Details
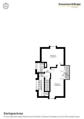
Objektbeschreibung
Dieses charmante Einfamilienhaus aus dem Baujahr 1960 überzeugt durch seinen klassischen Rotklinker-Stil und eine ruhige, dennoch sehr zentrale Lage in einer Sackgasse im Herzen von Großhansdorf. Das Haus bietet auf ca. 92 m² Wohnfläche eine solide Basis für Familien, Paare oder Individualisten, die ein Zuhause mit Charakter...
Ausstattung
Das Einfamilienhaus überzeugt nicht nur durch seinen soliden Rotklinkerbau, sondern auch durch eine charmante Ausstattung. Im Inneren des Hauses finden sich zahlreiche alte Details, die dem Objekt eine besondere Atmosphäre verleihen, darunter das wunderschöne Stäbchenparkett und die edlen Solenhofener Platten, die dem Haus...
Preisinformation
2 Stellplätze
1 Garagenstellplatz
Weitere Informationen
Stichworte
Nutzfläche: 59,34 m², Anzahl der Schlafzimmer: 3, Anzahl der Badezimmer: 2, Anzahl Balkone: 1, Anzahl Terrassen: 1, Distanz zum Kindergarten: 0.31, Distanz zur Grundschule: 0.28, Distanz zur nächsten Einkaufsmöglichkeit: 0.30, Distanz zum Gymnasium: 1.83, Distanz zum Hauptbahnhof: 3.21, Distanz zur Autobahn...
Anbieter der Immobilie

Online-ID: 2l25d5x
Referenznummer: 586560
Finde Angebote wie dieses
Hier geht es zu unserem Impressum, den Allgemeinen Geschäftsbedingungen, den Hinweisen zum Datenschutz und nutzungsbasierter Online-Werbung.