

Sterling Immobilien
Herr Maik Sterling
015 ···
Nr. anzeigenPreise & Kosten
Provision für Käufer
Die Käufer-Provision beträgt 3570 Euro inkl. MwSt.
Lage
Das Objekt befindet sich am ruhigen Ortsrand einer der Ortschaft Königerode im Harzvorland, inmitten der idyllischen Gemeinde Südharz. Die Umgebung ist geprägt von viel Grün, einem weiten Blick ins Umland und einem angenehm entschleunigten Lebensrhythmus. Die Nachbarschaft ist locker bebaut, überwiegend mit Einfamilienhäusern...
Das Haus
Kategorie
Einfamilienhaus
Baujahr
1890
Energie & Heizung
Warum sehe ich diese Anzeige? – Du siehst diese Anzeige basierend auf Ihrer Navigation auf unserer Website und den Suchkriterien, die du verwendet hast.
Energieausweistyp
Verbrauchsausweis
Gebäudetyp
Wohngebäude
Wesentliche Energieträger
Holz
Gültigkeit
20.06.2025 bis 20.06.2035
Endenergieverbrauch
26,10 kWh/(m²·a)
Weitere Energiedaten
Heizungsart
Ofen
Details
Objektbeschreibung
Achtung: Kein Mietkauf möglich.
Diese Immobilie in Königerode (Ortsteil von Harzgerode, Landkreis Harz) vereint bewohnbaren Wohnraum mit großzügigem Nutzflächenpotenzial - eingebettet in eine geschlossene Hofstruktur, die sowohl Privatsphäre als auch vielfältige Nutzungsmöglichkeiten bietet.
Das Wohnhaus ist...
Ausstattung
Eckdaten im Überblick:
. ca. 613?m² Grundstücksfläche
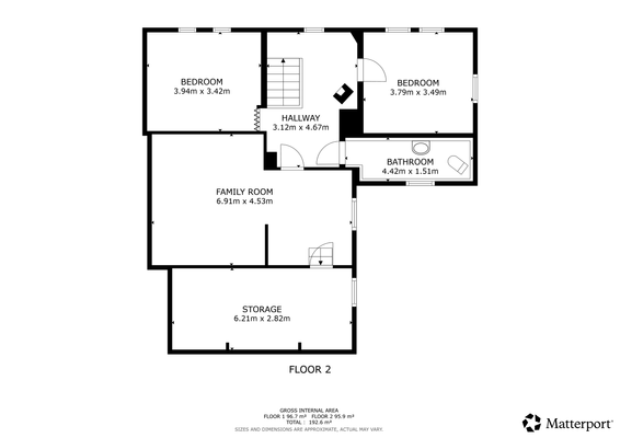
. ca. 190?m² Wohnfläche
. 6 Zimmer
. Mauerwerk: Ziegel und Lehm
. Heizung ausschließlich über Holzöfen
. Warmwasser wird über Durchlauferhitzer erzeugt
. 3 Schornsteine mit jeweils 2 Zügen
. Fenster: Kunststoff, doppelt verglast (Baujahr...
Weitere Informationen
Sonstiges
Alle Daten in diesem Exposé beruhen auf Angaben des Eigentümers der Immobilie. Die Angaben zum Objekt sind von uns, Sterling-Immobilien.de, mit großer Sorgfalt zusammengestellt worden. Wir übernehmen keine Haftung für die Angaben des Angebotes, welche uns der Verkäufer/Anbieter übermittelt hat. Irrtümer bleiben...
Dokumente
Anbieter der Immobilie
Sterling Immobilien
Drosselweg 4, 06467 Hoym

Online-ID: 2l25n52
Referenznummer: SI-946
Finde Angebote wie dieses
Hier geht es zu unserem Impressum, den Allgemeinen Geschäftsbedingungen, den Hinweisen zum Datenschutz und nutzungsbasierter Online-Werbung.