
WAG Wohnungsanlagen Gesellschaft m.b.H.
Frau Beratung und Verkauf
+43 ···
Nr. anzeigenPreise & Kosten
Provision für Käufer
Bitte beachte, das Angebot kann bei Vertragsabschluss die Zahlung einer Provision beinhalten. Weitere Informationen erhältst Du vom Anbieter.
Lage
Die Wohnungen am Mörikeweg bieten ruhiges Wohnen im Grünen mit Nahversorgern, Schulen, Ärzten und Öffis in Gehdistanz. Innenstadt, PlusCity und Autobahn sind schnell erreichbar - ideal angebunden, rundum versorgt.
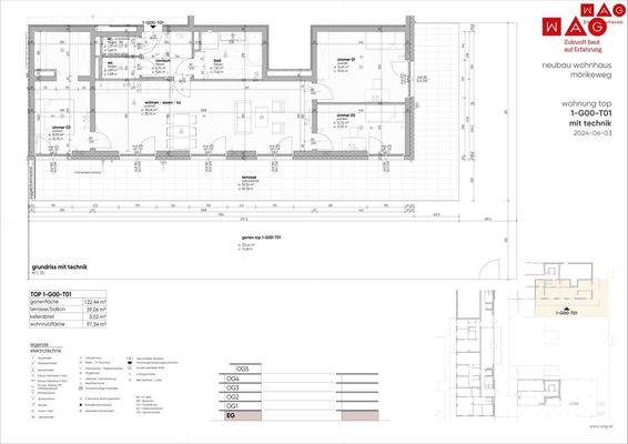
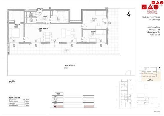
Die Wohnung
Wohnungslage
Erdgeschoss
Bezug
sofort
Wohnanlage
Energie & Heizung
Warum sehe ich diese Anzeige? – Du siehst diese Anzeige basierend auf Ihrer Navigation auf unserer Website und den Suchkriterien, die du verwendet hast.
Heizwärmebedarf (HWB)
35,00 kWh/(m²·a)
Gesamtenergieeffizienz (fGEE)
0,69
Weitere Energiedaten
Energieträger
Erdwärme, Fernwärme, Solar
Heizungsart
Fußbodenheizung
Details
Objektbeschreibung
Smart wohnen mit grünem Gewissen
Am Mörikeweg trifft nachhaltige Technik auf modernes Design: Wohnungen zwischen 53,73 m² und 96,75 m² mit Balkon, Garten oder Dachterrasse, smarte Energie durch PV, Wärmepumpe und Deckenkühlung - komfortabel, klimafreundlich und zukunftssicher.
Mit Tiefgarage und...
Preisinformation
1 Stellplatz
Weitere Informationen
Sonstiges
Homepage - https://www.wag.at/aktuelle-projekte/eigentum/moerikeweg-eigentum
Stichworte
Ergänzendes dezentrales Warmwasser, Tiefgarage vorhanden, Süd-Ost-Balkon/Terrasse, Fahrradraum, Rolladen, Grundstücksfläche: 122,44 m², Anzahl der Badezimmer: 1, Anzahl der separaten WCs: 1, Anzahl Terrassen: 1...
Dokumente
Anbieter der Immobilie
WAG Wohnungsanlagen Gesellschaft m.b.H.
Mörikeweg 6, 4025 LINZ
Online-ID: 2l2975f
Referenznummer: OBGC20240718134959289da262ae019
Finde Angebote wie dieses
Günstige Immobilienfinanzierung einfach online berechnen
Persönliches Angebot berechnenWarum sehe ich diese Werbung? – Du siehst diese Werbung basierend auf Deiner Navigation auf unserer Website und der von Dir verwendeten Suchkriterien.
Diese Werbung wird bezahlt von durchblicker
Werbung melden
Hier geht es zu unserem Impressum, den Allgemeinen Geschäftsbedingungen, den Hinweisen zum Datenschutz und nutzungsbasierter Online-Werbung.