
FOCUS Immobilienmakler GmbH
Herr Mario Schubert
004 ···
Nr. anzeigenPreise & Kosten
Provision für Käufer
3,57% incl. Mwst inkl. MwSt.
Lage
Der Ortsteil Paunsdorf liegt im Osten von Leipzig und ist eine ruhige und grüne Wohngegend.
Für den großen und kleinen Einkauf bietet sich das nahegelegene Einkaufszentrum "Paunsdorf-Center" an.
In überschaubarer Zeit erreichen Sie mit der Straßenbahn auch das Leipziger Zentrum und mit dem Auto direkt die...
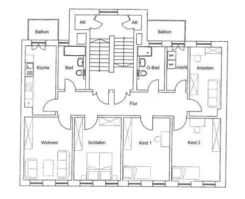
Die Wohnung
Wohnungslage
2. Geschoss
Bezug
nach Absprache
Derzeitige Nutzung
vermietet
Wohnanlage
Energie & Heizung
Warum sehe ich diese Anzeige? – Du siehst diese Anzeige basierend auf Ihrer Navigation auf unserer Website und den Suchkriterien, die du verwendet hast.
Energieausweistyp
Verbrauchsausweis
Gebäudetyp
Wohngebäude
Wesentliche Energieträger
GAS
Gültigkeit
bis 24.09.2033
Effizienzklasse
B
Endenergieverbrauch
75,00 kWh/(m²·a)
Weitere Energiedaten
Energieträger
Gas
Heizungsart
Zentralheizung
Details
Objektbeschreibung
Saniertes Mehrfamilienhaus in ruhiger Seitenstraße mit großem grünen Mietergemeinschaftsgarten.
Hinweis zur Courtage:
Provisionsteilung - hälftige Käufer- bzw. Verkäuferprovision in Höhe von je 3,57 % inkl. 19 % Umsatzsteuer vom endgültigen Erwerbspreis (fällig für den Käufer bei Vertragsabschluss und nach...
Ausstattung
Sie suchen eine besondere Immobilie mit viel Gestaltungsspielraum in ruhiger Wohnlage?
Dann könnte dieses Angebot genau das Richtige für Sie sein!
Zum Verkauf stehen zwei nebeneinanderliegende Wohnungen - eine 2-Raum- und eine 3-Raumwohnung - im 2.Obergeschoß eines gepflegten Mehrfamilienhauses in ruhiger, aber...
Preisinformation
Ist-Mieteinnahmen pro Jahr: 9.831,24 EUR
Weitere Informationen
Sonstiges
Für ergänzende Informationen zum Objekt und ein persönliches Beratungsgespräch stehen wir Ihnen gern auch telefonisch zur Verfügung.
Sind Sie an weiteren Angeboten interessiert? Besuchen Sie uns doch auf unserer Homepage www.focus-makler.de.
Wir freuen uns auf Sie.
Stichworte
Anzahl der...
Dokumente
Anbieter der Immobilie
FOCUS Immobilienmakler GmbH
Rabensteinplatz 1, 04103 Leipzig
Online-ID: 2l2a25p
Referenznummer: 12979
Finde Angebote wie dieses
Hier geht es zu unserem Impressum, den Allgemeinen Geschäftsbedingungen, den Hinweisen zum Datenschutz und nutzungsbasierter Online-Werbung.