




Wohnung zur Miete505 €4 Zimmer • 76,4 m² • 3. Geschoss
505 €
4 Zimmer • 76,4 m² • 3. Geschoss
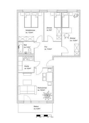
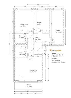
4-Zimmer-Wohnung: Platz für alle!
Merkmale
- Bezug: sofort
- 3. Geschoss
- Kelleranteil
- Balkon
- Badewanne
Grundrisse
Grundrisse
1 / 2
Realisiere Dein Projekt
Bausubstanz und Energie
Energieausweis
C
- Baujahr1979
- HeizungsartZentralheizung
- EnergieträgerGas
Mietkosten
Warmmiete
720 €
Kaltmiete
6,61 €/m²
505 €
Nebenkosten
100 €
Heizkosten
115 €
Kaution
keine Angabe
Weitere Preisinformationen
Nettokaltmiete: 505,00 EUR
Lage

Röpersdorfer Straße 11, Prenzlau (17291)
Weitere Informationen
Weitere Services
Lust auf eine Besichtigung?
Eine Frage zur Immobilie?
Über den Anbieter
Wohnbau GmbH PrenzlauMaklerbüro
Friedrichstr. 41, 17291 Prenzlau
Partnerschaft

Team VermietungsexpertenDein Kontakt
Online-ID: 2l2fc5z
Referenznummer: 1/508/1/7
Wie zufrieden bist du mit dieser Seite (nicht mit der Immobilie selbst)?




