

BPD Immobilienentwicklung GmbH
Firma BPD Immobilienentwicklung GmbH
+49 ···
Nr. anzeigenDieses Angebot ist Teil des Neubauprojekts
Katharinenhöfe
Preise & Kosten
Provision für Käufer
provisionsfrei
Lage
Die Stadt Willich umfasst als Kommune neben Alt-Willich noch drei weitere Stadtteile – sie liegen wie Satelliten um den zentralen Stadtteil verteilt.
Die Katharinenhöfe befinden sich im historischen Alt-Willich, in Laufweite der Fußgängerzone samt Marktplatz und Katharinenkirche. Das meiste für den täglichen Bedarf...
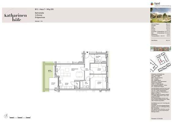
Die Wohnung
Kategorie
Terrassenwohnung
Wohnungslage
Erdgeschoss
Bezug
2028
Wohnanlage
Das Neubauprojekt
Energie & Heizung
Warum sehe ich diese Anzeige? – Du siehst diese Anzeige basierend auf Ihrer Navigation auf unserer Website und den Suchkriterien, die du verwendet hast.
Weitere Energiedaten
Heizungsart
Fußbodenheizung
Details
Ausstattung
Mit unserer zeitgemäßen Ausstattung in den Eigentumswohnungen können Sie ganz einfach Loswohnen. Bestens ausgestattet mit allem Notwendigen bietet Ihnen unser Standard den perfekten Start in Ihre eigenen vier Wände.
Großen Wert legen wir auf die Gestaltung unserer Bäder. Wenn morgens alle gleichzeitig in den Tag...
Weitere Informationen
Wohnen im Grünen
Mit den Katharinenhöfen entsteht mitten im Herzen von Alt-Willich ein neues Quartier mit Wohnungen zum Kauf und Gewerbe entlang der Bahnstraße.
Das Areal in Willich grenzt direkt an den Konrad-Adenauer-Park und liegt in unmittelbarer, fußläufiger Entfernung zur Innenstadt. Herzstück des neuen...
Dokumente
Anbieter der Immobilie

Online-ID: 2l2ls59
Referenznummer: a087R00001FvP4CQAV
Finde Angebote wie dieses
Hier geht es zu unserem Impressum, den Allgemeinen Geschäftsbedingungen, den Hinweisen zum Datenschutz und nutzungsbasierter Online-Werbung.