maija.io

BIG BALI GROUP

Ferienwohnung am Meer

€ 85.378
Kaufpreis
30 m²
Wohnfläche ca.
1
Zimmer

Der Anbieter dieses Objekts hat gegenüber der AVIV Germany GmbH als Betreiber dieses Online-Marktplatzes erklärt, nicht als Unternehmer im Sinne des § 1 KSchG zu handeln. Die im Verbraucherschutzrecht der Union verankerten Verbraucherrechte (insbesondere Informationspflichten und Rücktritts- bzw. Widerrufsrechte) finden auf den Vertrag zwischen dem Anbieter des Objekts und Ihnen (dem Interessenten) keine Anwendung.

Gewerblicher Anbieter

Der Anbieter dieses Objekts hat gegenüber der AVIV Germany GmbH als Betreiber dieses Online-Marktplatzes erklärt, als Unternehmer im Sinne des § 1 KSchG zu handeln.

AdresseMANTA LIVIN Uluwatu
80362 Badung 
Auf Karte ansehen

Preise & Kosten

Kaufpreis € 85.378 Nebenkosten € 143,74

Provision für Käufer

Bitte beachte, das Angebot beinhaltet bei Vertragsabschluss die Zahlung einer Provision. Weitere Informationen erhältst Du vom Anbieter.

Lage

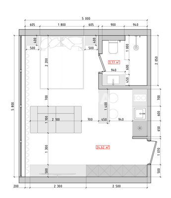
Die Wohnung

Kategorie

Apartment

Wohnungslage

2. Geschoss

  • Bad mit Dusche, Bidet
  • Balkon
  • Böden: Fliesenboden
  • Ausstattung: möbliert
  • voll klimatisiert
  • Weitere Räume: Kelleranteil

Wohnanlage

  • Baujahr: 2027
  • Zustand: Neubau
  • Wellness: Swimming-Pool, Sauna

Details

Objektbeschreibung

Das Seaborne Apartment liegt auf einer 198 Meter hohen Klippe, nur 100 Meter vom Meer entfernt. Es ist Ihre private Aussichtsplattform für Balis berühmte Sonnenuntergänge und ein leistungsstarkes Instrument zur Einkommensgenerierung.

Das Layout ist sorgfältig entworfen, sodass jeder Punkt in der Einheit - vom Bett bis...

Mehr anzeigen

Weitere Informationen

Stichworte
Gesamtfläche: 33,40 m², Anzahl der Schlafzimmer: 1, Anzahl der Badezimmer: 1, Anzahl Balkone: 1, Flurstück: Pecatu, Bundesland: Bukit, 1 Etagen, Distanz zum Flughafen: 18, Distanz zum Strand: 5.2, Distanz zum Strand: 8.2, Distanz zur nächsten Einkaufsmöglichkeit: 19, Distanz zur nächsten Gaststätte: 4.6, Distanz...

Mehr anzeigen

Anbieter der Immobilie

Partner

maija.io

Elimäenkatu 17-19, 00510 HELSINKI

user

BIG BALI GROUP

Dein Ansprechpartner

Anbieter-Website Anbieter-Profil Anbieter-Impressum

Online-ID: 2l2qv5v

Referenznummer: 669668

Finde Angebote wie dieses

imageimageimage

Hier geht es zu unserem Impressum, den Allgemeinen Geschäftsbedingungen, den Hinweisen zum Datenschutz und nutzungsbasierter Online-Werbung.