
Immobilienbüro Kühn GmbH Co. KG, Komplimentär: Immobilienbüero Kühn Verwaltungs GmbH
Herr Wolfgang Kühn
+49 ···
Nr. anzeigenPreise & Kosten
Provision für Käufer
2.975,- EUR inkl. 19 % MwSt.
Die Provision beträgt pauschal 2.975,- EUR inkl. 19 % MwSt.
Sie ist verdient mit Abschluss des notariellen Kaufvertrages und spätestens mit dem Kaufpreis zur Zahlung fällig. Weitere Informationen siehe Provisionsh
Lage
Mit ca. 8.000 Einwohnern gehört Treuen zum Vogtlandkreis und liegt 14 km östlich der Stadt Plauen. Eine herrliche, waldreiche und ruhige Umgebung mit vielen Wandermöglichkeiten sowie interessante Sehenswürdigkeiten zeichnen Treuen aus.
Der Ort gilt als ein moderner Wohn- und Gewerbestandort.
Die Immobilie...
Die Wohnung
Wohnungslage
2. Geschoss
Derzeitige Nutzung
vermietet
Wohnanlage
Energie & Heizung
Warum sehe ich diese Anzeige? – Du siehst diese Anzeige basierend auf Ihrer Navigation auf unserer Website und den Suchkriterien, die du verwendet hast.
Energieausweistyp
Verbrauchsausweis
Gebäudetyp
Wohngebäude
Baujahr laut Energieausweis
1996
Wesentliche Energieträger
Gas
Gültigkeit
04.03.2022 bis 03.03.2032
Endenergieverbrauch
103,00 kWh/(m²·a) - Warmwasser enthalten
Weitere Energiedaten
Energieträger
Gas
Heizungsart
Zentralheizung
Details
Objektbeschreibung
Das Mehrfamilienhaus wurde lt. Energieausweis 1996 erbaut.
Es befindet sich in einer ruhigen Siedlung mit Mehr- bzw. Einfamilienhäusern.
Ausstattung
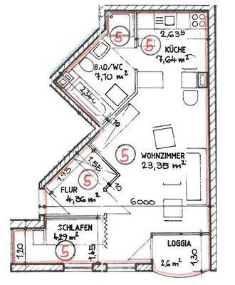
Die ca. 43,88 m² große 1-Raum-Wohnung befindet sich im 2. OG und teilt sich wie folgt auf:
- Flur
- Badezimmer mit Dusche und Wanne (innenliegend)
- Wohnzimmer mit Küchenecke, Schlafnische u. Zugang Loggia
- Loggia
Zur Wohnung gehört ein Kellerabteil mit der Nr. 5.
Die Wohnung ist vermietet. Der...
Weitere Informationen
Provisionshinweis
2.975,- EUR inkl. 19 % MwSt.
Die Provision beträgt pauschal 2.975,- EUR inkl. 19 % MwSt.
Sie ist verdient mit Abschluss des notariellen Kaufvertrages und spätestens mit dem Kaufpreis zur Zahlung fällig. Der Makler hat mit dem Verkäufer einen provisionspflichtigen Vertrag in gleicher Höhe...
Online-ID: 2l2qw5m
Referenznummer: AB30-05
Finde Angebote wie dieses
Hier geht es zu unserem Impressum, den Allgemeinen Geschäftsbedingungen, den Hinweisen zum Datenschutz und nutzungsbasierter Online-Werbung.