OVB Allfinanzvermittlungs GmbH

Frau Sara Hufnagl

Ihr neues Zuhause mit großzügiger Freifläche: exklusiv & hochwertig

€ 599.000
Kaufpreis
95 m²
Wohnfläche ca.
3
Zimmer
Finanzierung berechnen mit durchblicker

Der Anbieter dieses Objekts hat gegenüber der AVIV Germany GmbH als Betreiber dieses Online-Marktplatzes erklärt, nicht als Unternehmer im Sinne des § 1 KSchG zu handeln. Die im Verbraucherschutzrecht der Union verankerten Verbraucherrechte (insbesondere Informationspflichten und Rücktritts- bzw. Widerrufsrechte) finden auf den Vertrag zwischen dem Anbieter des Objekts und Ihnen (dem Interessenten) keine Anwendung.

Gewerblicher Anbieter

Der Anbieter dieses Objekts hat gegenüber der AVIV Germany GmbH als Betreiber dieses Online-Marktplatzes erklärt, als Unternehmer im Sinne des § 1 KSchG zu handeln.

AdresseStraße nicht freigegeben
4531 Kematen an der Krems 
Auf Karte ansehen

Preise & Kosten

Kaufpreis € 599.000 Preis/m² € 6.133,52

Provision für Käufer

3% des Kaufpreises zzgl. 20% USt.

Lage

Lagebeschreibung - Leben am Golfplatz, zentral im oberösterreichischen Zentralraum

Nobile Greenville entsteht in Kematen an der Krems, einer aufstrebenden Marktgemeinde zwischen Linz, Wels und Steyr. Die Lage verbindet das Beste aus zwei Welten: Ruhe, Natur und Freizeitqualität - bei gleichzeitig exzellenter Anbindung...

Mehr anzeigen

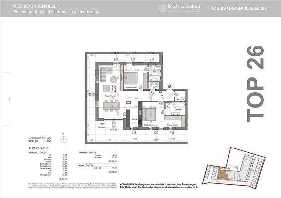
Die Wohnung

Wohnungslage

Dachgeschoss

  • Loggia, Terrasse
  • barrierefrei
  • Böden: Holzdielen, Fliesenboden
  • Zustand: Erstbezug

Wohnanlage

  • Baujahr: 2026
  • Zustand: Neubau
  • Personenaufzug

Energie & Heizung

Heizwärmebedarf (HWB)

B

30,20 kWh/(m²·a)

Gesamtenergieeffizienz (fGEE)

A+

0,66

Weitere Energiedaten

Energieträger

Fernwärme, Solar

Heizungsart

Fußbodenheizung

Details

Objektbeschreibung

28 exklusive & hochwertige Eigentumswohnungen z_wischen Linz, Wels & Steyr _

Mit Nobile Greenville entsteht ein modernes Wohnprojekt mit insgesamt 28 stilvollen Eigentumswohnungen, die Design, Wohnkomfort und Umweltbewusstsein perfekt vereinen. In bester Lage zwischen Wels, Linz und Steyr im Herzen von...

Mehr anzeigen

Weitere Informationen

Stichworte
Carport vorhanden, Garage vorhanden, Nutzfläche: 97,66 m², Anzahl Terrassen: 1, Anzahl Loggias: 1, Balkon-Terrassen-Fläche: 60,60 m², Kellerfläche: 11,48 m², Bundesland: Oberösterreich

Dokumente

file_pdfDokument 1angle_rightfile_pdfDokument 2angle_right

Anbieter der Immobilie

Partner

OVB Allfinanzvermittlungs GmbH

Sirone Straße 4/1/C, 5071 WALS B. SALZBURG

user

Frau Sara Hufnagl

Dein Ansprechpartner

Anbieter-Website Anbieter-Profil Anbieter-Impressum

Online-ID: 2l2rm5e

Referenznummer: OBGC20250710165839430d01fb97582

Finde Angebote wie dieses

imageimageimage

Günstige Immobilienfinanzierung einfach online berechnen

Persönliches Angebot berechnen

Hier geht es zu unserem Impressum, den Allgemeinen Geschäftsbedingungen, den Hinweisen zum Datenschutz und nutzungsbasierter Online-Werbung.