
Schneide GmbH
Herr Benjamin Timmann
004 ···
Nr. anzeigenPreise & Kosten
Provision für Käufer
Courtagefrei! inkl. MwSt.
Lage
Das Grundstück befindet sich im Hamburger Stadtteil Curslack. Curslack erstreckt sich entlang der Dove-Elbe südlich der A25 entlang. Die knapp 4000 Einwohner leben auf insgesamt 10.6 km² grossteils in gemütlichen Einfamilienhüsern entlang der Deichstrassen.
Die Hamburger City ist über die A 25 oder die B 5 in etwa 25...
Die Wohnung
Wohnungslage
Erdgeschoss
Bezug
Frühjahr 2026
Wohnanlage
Energie & Heizung
Warum sehe ich diese Anzeige? – Du siehst diese Anzeige basierend auf Ihrer Navigation auf unserer Website und den Suchkriterien, die du verwendet hast.
Energieausweistyp
Bedarfsausweis
Gebäudetyp
Wohngebäude
Baujahr laut Energieausweis
2025
Wesentliche Energieträger
LUFTWP
Gültigkeit
bis 01.06.2035
Effizienzklasse
A+
Endenergiebedarf
11,00 kWh/(m²·a)
Weitere Energiedaten
Heizungsart
Fußbodenheizung, Luft-/Wasser-Wärmepumpe
Details
Objektbeschreibung
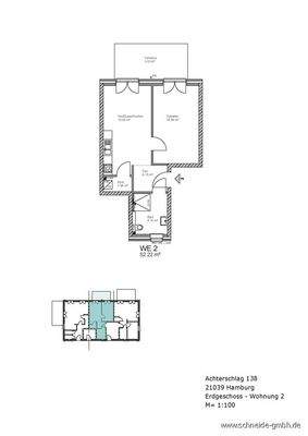
. Terrassenwohnung WE 2 .
In direkter Feldrandlage entsteht mit diesem Bauprojekt eine kleine Wohnanlage mit 5 Eigentumswohnungen. Das Gebäude wird nach den aktuellen Vorgaben und Richtlinien des GEG (Gebäudeenergiegesetz) errichtet.
Die angebotene Wohnung (Whg. 2) befindet sich im Erdgeschoss. Die Wohnung...
Ausstattung
. Projektbeschreibung .
4 moderne 2 bis 3-Zimmer Eigentumswohnungen sowie eine 5 Zimmer Doppelhaushälfte| Erstbezug | von ca. 52 m² bis ca. 141 m² Wohnfläche
- Massive Bauweise mit Verblendsteinfassade
- Energetische Bauweise nach GEG
- Beheizung über eine Luft-/ Wasser-Wärmepumpe (Firma Vaillant)
-...
Preisinformation
1 Stellplatz, Kaufpreis: 10.000,00 EUR
Weitere Informationen
Sonstiges
. Die Zahlung des Kaufpreises erfolgt nach der Makler- und Bauträgerverordnung (MaBV) in maximal 7 Teilraten gemäß Baufortschritt.
. Die Straße "Achterschlag" ist nicht endgültig hergestellt worden. Der Anschluss an die öffentliche Versorgung für Strom, Wasser, Abwasser und Telefon ist im Kaupreis...
Dokumente
Anbieter der Immobilie
Schneide GmbH
Kirchwerder Landweg 1, 21037 Hamburg
Online-ID: 2l2ut59
Referenznummer: BT_WE2_AS138_Anlage
Finde Angebote wie dieses
Hier geht es zu unserem Impressum, den Allgemeinen Geschäftsbedingungen, den Hinweisen zum Datenschutz und nutzungsbasierter Online-Werbung.