
SYSTEMA Immobilien GbR
Herr Heiko Krause
036 ···
Nr. anzeigenPreise & Kosten
Kaution
400,00
Provision für Mieter
provisionsfrei
Warum sehe ich diese Anzeige? – Du siehst diese Anzeige basierend auf Ihrer Navigation auf unserer Website und den Suchkriterien, die du verwendet hast.
Lage
Sehr gute Verkehrsanbindung, diverse Einkaufsmöglichkeiten sind in wenigen Minuten fußläufig erreichbar.
Büro-/Praxisfläche
Kategorie
Bürofläche
Baujahr
0
Bezug
sofort
Geschoss
Erdgeschoss
Energie & Heizung
Warum sehe ich diese Anzeige? – Du siehst diese Anzeige basierend auf Ihrer Navigation auf unserer Website und den Suchkriterien, die du verwendet hast.
Weitere Energiedaten
Energieträger
Gas
Heizungsart
Zentralheizung
Details
Objektbeschreibung
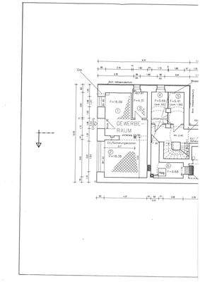
Diese kleine Gewerbeeinheit ist zentral gelegen. Die Nutzfläche beträgt ca. 39 m² und besteht aus 2 Räumen, Teeküche und WC.
Ideal als Büro, Friseur etc.
Ausstattung
neuer Laminatboden in allen Räumen
Fenster: Kunststoff mit Wärmeschutzverglasung
Kleine Teeküche mit Waschbecken
WC
Weitere Informationen
Sonstiges
Mietpreis bei Mehrwertsteueroption zzgl. geltender Mehrwertsteuer.
Stichworte
Wohnfläche: 39,00 m², Anzahl der separaten WCs: 1, Lage im Bau: vorne, Lage im Wohngebiet
Dokumente
Anbieter der Immobilie
Online-ID: 2l2vp54
Referenznummer: 700-1
Finde Angebote wie dieses
Hier geht es zu unserem Impressum, den Allgemeinen Geschäftsbedingungen, den Hinweisen zum Datenschutz und nutzungsbasierter Online-Werbung.