
Basis AG Immobilienberatung
Herr Christian Spilgies
+49 ···
Nr. anzeigenPreise & Kosten
Provision für Käufer
3,57 % inkl. MwSt inkl. MwSt.
Lage
Die direkt an das vornehme Berlin-Zehlendorf angrenzende Potsdam Mittelmark gehört zu den absoluten Top-Wohnlagen im Berliner Umland. Wohngrundstücke in dem ruhigen, durchgrünten Villenvorort sind äußerst begehrt. Dieses Areal ist geprägt von großzügigen Einfamilienhäusern. Neben zahlreichen guten allgemeinbildenden Schulen...
Das Haus
Kategorie
Einfamilienhaus
Baujahr
1936
Details
Objektbeschreibung
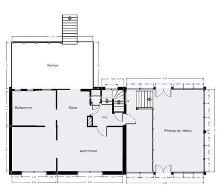
Das Wohnhaus, befindet sich auf einem ca. 948 m² großen, westlich ausgerichteten, sehr gut gelegenen, sehr sonnigen Grundstück an einem angrenzenden geschützten Biotop. Auf dem hinteren Grundstück befindet sich ein solider Schuppen mit Stromanschluß in massiver Bauweise, es ist extensiv mit Blumen und Rabatten bepflanzt und...
Weitere Informationen
Sonstiges
- großer Pool mit neuer Salzelektrolyseanlage (2022)
- Vorgarten mit Goldfischteich und Zugang durch den Wintergarten als Foyer mit Oberlichtern
- Doppel-Durchfahrtsgarage von der Straße zum Garten
- zahlreiche Nutzflächen im UG (HWR, Abstellraum, Hobbyraum)
- neue LED Beleuchtung teilweise in die...
Anbieter der Immobilie
Basis AG Immobilienberatung
Kurfürstendamm 220, 10719 Berlin
Online-ID: 2l2zp5m
Referenznummer: BAG 18337
Finde Angebote wie dieses
Hier geht es zu unserem Impressum, den Allgemeinen Geschäftsbedingungen, den Hinweisen zum Datenschutz und nutzungsbasierter Online-Werbung.