

Riesemann Immobilien GmbH
Frau Lydia Riesemann
081 ···
Nr. anzeigenPreise & Kosten
Provision für Käufer
3,57 zzgl. MwSt.
Lage
Denklingen liegt ca. 15 km südlich von Landsberg und 5 km westlich vom Lech.
Alles Nötige für den täglichen Bedarf erreichen Sie innerhalb von 10 Autominuten
Kindergarten, Schulen, Ärzte, Apotheken und Supermärkte (Edeka, Netto) sind in Asch und Leeder vorhanden.
Innerhalb 12 min. erreichen Sie die große...
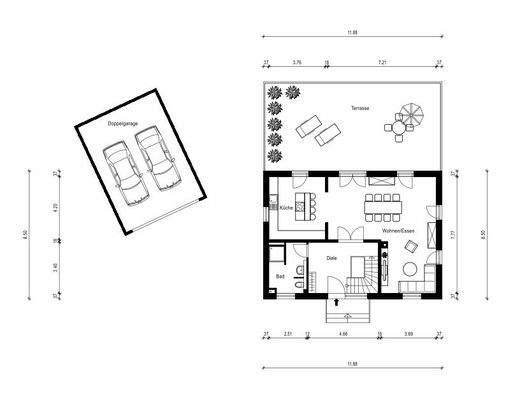
Das Haus
Kategorie
Einfamilienhaus
Baujahr
2018
Bezug
nach Absprache
Energie & Heizung
Warum sehe ich diese Anzeige? – Du siehst diese Anzeige basierend auf Ihrer Navigation auf unserer Website und den Suchkriterien, die du verwendet hast.
Energieausweistyp
Bedarfsausweis
Gebäudetyp
Wohngebäude
Baujahr laut Energieausweis
2018
Wesentliche Energieträger
GAS
Gültigkeit
22.10.2018 bis 21.10.2028
Effizienzklasse
A
Endenergiebedarf
42,70 kWh/(m²·a)
Weitere Energiedaten
Haustyp
Massivhaus
Energieträger
Gas
Heizungsart
Fußbodenheizung, offener Kamin, Zentralheizung
Details
Objektbeschreibung
Dieses exklusive Einfamilienhaus in massiver Bauweise verbindet modernste Technik, herausragende Ästhetik und zeitlose Eleganz zu einem unverwechselbaren Wohnambiente. Eine Photovoltaikanlage mit 9,28 kWp in Kombination mit einem 10 kWh-Speicher der Firma Sonnen sorgt für nachhaltige Energieunabhängigkeit und niedrige...
Ausstattung
- Gas- Zentralheizung (Gastank 4850 l)
- Fußbodenheizung
- PV-Anlage 9,28 kwP und 10 kW Speicher
- Kunststofffenster mit dreifach Isolierverglasung und Einbruchsicherung
- elektrisch-bedienbare Kunststoffrollläden
- Fliegengitter
- dezentrale Lüftungsanlage mit Wärmerückgewinnung
- Busch Jäger Free@ Home...
Preisinformation
2 Garagenstellplätze
Weitere Informationen
Sonstiges
Wir sind allein beauftragte Makler und freuen uns auf Sie und Ihren Anruf.
Vereinbaren Sie einen persönlichen Besichtigungstermin für dieses attraktive Objekt.
Bei schriftlicher Kontaktaufnahme geben Sie bitte Ihre Telefonnummer an. Wir rufen Sie gerne zurück.
Alle Angaben sind ohne Gewähr und...
Anbieter der Immobilie

Online-ID: 2l32y5m
Referenznummer: 1037
Finde Angebote wie dieses
Hier geht es zu unserem Impressum, den Allgemeinen Geschäftsbedingungen, den Hinweisen zum Datenschutz und nutzungsbasierter Online-Werbung.