
FIDANIA AG
Büro Ahrensburg
004 ···
Nr. anzeigenPreise & Kosten
Provision für Käufer
3,57 %
Lage
Dieses charmante Doppelhaushälfte liegt in einer ruhigen Anliegerstraße in der Gemeinde Ammersbek, die durch eine Kombination aus naturnaher Umgebung und guter Verbindung zu Ahrensburg und Hamburg punktet.
Die gute Verkehrsanbindung an den ÖPNV ist über eine nahegelegene Bushaltestelle der Buslinie 569 (5 min zu Fuß)...
Das Haus
Kategorie
Doppelhaushälfte
Baujahr
1954
Energie & Heizung
Warum sehe ich diese Anzeige? – Du siehst diese Anzeige basierend auf Ihrer Navigation auf unserer Website und den Suchkriterien, die du verwendet hast.
Energieausweistyp
Bedarfsausweis
Gebäudetyp
Wohngebäude
Baujahr laut Energieausweis
1954
Wesentliche Energieträger
GAS
Gültigkeit
bis 15.10.2033
Endenergiebedarf
227,40 kWh/(m²·a)
Weitere Energiedaten
Energieträger
Gas
Details
Objektbeschreibung
Diese charmant sanierte Doppelhaushälfte in Ammersbek besticht durch Ihre zentrale, ruhige Lage, eine moderne Ausstattung und eine gute Raumaufteilung.
Die Immobilie überzeugt durch eine umfassende Sanierung, die einen hohen Wohnkomfort mit einer zeitgemässen Technik vereint. Die komplette Erneuerung der Elektrik und...
Ausstattung
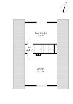
- Ca. 68 m² Wohnfläche
- 396 m² Grundstücksfläche
- umfassend 2022-2023 saniert: Fenster, Elektrik, Wasser, Küche, Bad, Gasheizung
- moderne Gasheizung von 2022
- Dach 1990 ausgebaut und gedämmt
- 3,5 Zimmer
- moderne Einbauküche
- zeitloses Duschbad
- Teil-Keller mit...
Preisinformation
1 Garagenstellplatz
Weitere Informationen
Sonstiges
Gerne stellen wir Ihnen ein umfassendes Exposé mit der genauen Adresse der Immobilie zur Verfügung - senden Sie uns einfach eine Anfrage.
Haben Sie selbst eine Immobilie, die Sie verkaufen möchten oder für die wir eine unverbindliche Bewertung durchführen können? Oder möchten Sie frühzeitig über unsere...
Anbieter der Immobilie
FIDANIA AG
Wellingsbüttler Weg 32, 22391 Hamburg
Online-ID: 2l33e5z
Referenznummer: 1089HAM25
Finde Angebote wie dieses
Hier geht es zu unserem Impressum, den Allgemeinen Geschäftsbedingungen, den Hinweisen zum Datenschutz und nutzungsbasierter Online-Werbung.