
E + V Hamburg Immobilien GmbH
Team Engel & Völkers Hamburg Alster
+49 ···
Nr. anzeigenPreise & Kosten
Provision für Käufer
Weitere Informationen siehe Provisionshinweis.
Abschreibung/Anlage
Denkmalschutz-Afa
Lage
Diese Adresslage gehört zu den beliebtesten an der Alster. Schöne alte Stadtvillen und einige exklusive Neubauten prägen das elegante Bild dieser Straße. In wenigen Gehminuten kann man die Alster erreichen und das vielfältige Freizeitangebot nutzen. Ein ideales Zuhause für Familien und Paare. In unmittelbarer Nähe befindet...
Das Haus
Kategorie
Villa
Baujahr
1880
Energie & Heizung
Warum sehe ich diese Anzeige? – Du siehst diese Anzeige basierend auf Ihrer Navigation auf unserer Website und den Suchkriterien, die du verwendet hast.
Energieausweistyp
Bedarfsausweis
Gebäudetyp
Wohngebäude
Baujahr laut Energieausweis
1880
Gültigkeit
seit 21.02.2025
Effizienzklasse
A
Endenergiebedarf
46,00 kWh/(m²·a)
Details
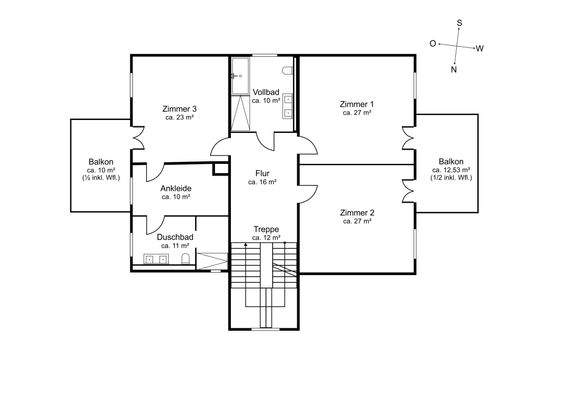
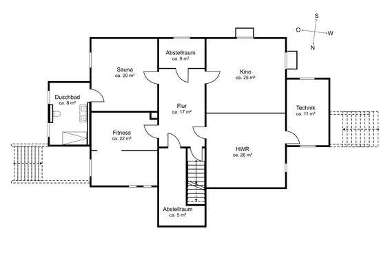
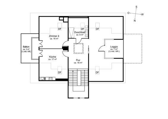
Objektbeschreibung
- Freistehende Stadtvilla mit ca. 979m² großem Eckgrundstück
- Baujahr ca. 1870 und 2025 denkmalgerecht, aufwendig kernsaniert
- Repräsentative Fassade im Stil des Spätklassizismus
- Großzügige, lichtdurchflutete Grundrisse mit offenem Raumgefühl
- Vollständig erneuerte Haustechnik (Heizung, Sanitär, Elektro...
Weitere Informationen
Provisionshinweis
Sie sind selbst Eigentümer und möchten erfahren, wie sich der Wert Ihrer eigenen Immobilie entwickelt hat? Gerne erstellen wir für Sie eine professionelle Marktbewertung und unterstützen Sie kompetent und zuverlässig beim erfolgreichen Verkauf Ihrer Immobilie. Für weitere Informationen wenden Sie sich...
Anbieter der Immobilie
E + V Hamburg Immobilien GmbH
Stadthausbrücke 5, 20355 Hamburg
Online-ID: 2l33l5c
Referenznummer: I-046G5J-W-046G5J
Finde Angebote wie dieses
Hier geht es zu unserem Impressum, den Allgemeinen Geschäftsbedingungen, den Hinweisen zum Datenschutz und nutzungsbasierter Online-Werbung.