

City4Living GmbH
Firma City Verwalter GmbH
060 ···
Nr. anzeigenPreise & Kosten
Kaution
3 Kaltmieten
Provision für Mieter
Bitte beachte, das Angebot beinhaltet bei Vertragsabschluss die Zahlung einer Provision. Weitere Informationen erhältst Du vom Anbieter.
Warum sehe ich diese Anzeige? – Du siehst diese Anzeige basierend auf Ihrer Navigation auf unserer Website und den Suchkriterien, die du verwendet hast.
Lage
Die Restaurantfläche befindet sich in einem Einkaufszentrum in der Waldstraße in Nauheim.
Zentrale Lage und in wenigen Minuten zu Fuß erreichbar, dank Bushaltestelle direkt vor dem Gebäude und Bahnhof ca. 10 Minuten entfernt. In wenigen Fahrminuten sind Sie auf der BAB 60 oder 67.
Gastronomie/Hotel
Kategorie
Restaurant
Bezug
Absprache
Derzeitige Nutzung
frei
Energie & Heizung
Warum sehe ich diese Anzeige? – Du siehst diese Anzeige basierend auf Ihrer Navigation auf unserer Website und den Suchkriterien, die du verwendet hast.
Weitere Energiedaten
Heizungsart
Zentralheizung
Details
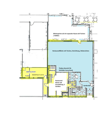
Objektbeschreibung
Hier könnte Ihr Restaurant entstehen!
Verfügbar nach Absprache und Renovierung nach Ihren individuellen Wünschen.
Setzen Sie Ihren Traum in die Wirklichkeit um!
Investitionszuschuss in Höhe von 20.000 € des Eigentümers für den Umbau möglich!
Ausstattung
Renovieren Sie die Gastronomiefläche nach Ihren Wünschen!
Aktuell aufgeteilt in:
- Eingangsbereich mit Garderobe
- neuwertige WC Anlagen für Männer und Frauen
- großer Restaurantbereich mit ausreichend Sitzplätzen, individuell gestaltbar
- Zusätzlich abgetrennter Gastraum (für mögliche Feiern, etc.)
-...
Weitere Informationen
Besichtigungstermine
Sie haben Fragen?
Wenden Sie sich an uns und wir verhelfen Ihnen zur Ihrem Restaurant oder Gastronomie-Traum.
Anbieter der Immobilie
City4Living GmbH
Seeblick 3, 63868 Großwallstadt

Online-ID: 2l33u59
Finde Angebote wie dieses
Hier geht es zu unserem Impressum, den Allgemeinen Geschäftsbedingungen, den Hinweisen zum Datenschutz und nutzungsbasierter Online-Werbung.