

DALEXIS ImmobilienService GmbH
Herr Michael Kneissl
+49 ···
Nr. anzeigenPreise & Kosten
Provision für Käufer
1,79% inklusive 19% Umsatzsteuer
Das Angebot ist provisionspflichtig. Mit Abschluss des notariellen Kaufvertrages werden je 1,79% inkl. 19% Umsatzsteuer fällig.
Lage
Leben und Arbeiten vor den Toren Münchens im Herzen des Oberlandes
- Hochwertiges Wohnen mit Bergblick, Südbalkon und idyllischem Garten
- Moderne Gewerbefläche mit vielen Nutzungsoptionen
- Optimale Infrastruktur und Verkehrsanbindung an die A8 und A95
Das Oberland zählt zu den schönsten Regionen in den...
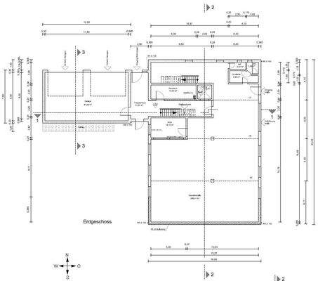
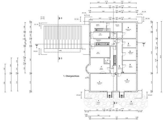
Das Haus
Baujahr
2007
Bezug
sofort
Energie & Heizung
Warum sehe ich diese Anzeige? – Du siehst diese Anzeige basierend auf Ihrer Navigation auf unserer Website und den Suchkriterien, die du verwendet hast.
Wärme
Strom
Energieausweistyp
Verbrauchsausweis
Gebäudetyp
Nicht-Wohngebäude
Baujahr laut Energieausweis
2007
Wesentliche Energieträger
GAS
Gültigkeit
bis 01.10.2027
Endenergieverbrauch (Wärme)
51,30 kWh/(m²·a)
Endenergieverbrauch (Strom)
51,30 kWh/(m²·a)
Weitere Energiedaten
Haustyp
Massivhaus
Energieträger
Gas
Heizungsart
Fußbodenheizung
Details
Objektbeschreibung
Leben und Arbeiten vor den Toren Münchens
- Hochwertiges Wohnen mit Bergblick, Südbalkon und idyllischem Garten
- Moderne Gewerbefläche mit vielen Nutzungsoptionen
- Optimale Infrastruktur und Verkehrsanbindung an die A8 und A95
Die im Jahre 2007 in massiver Ziegelbauweise errichtete und von uns im...
Ausstattung
- Baujahr 2007
- Massive Ziegelbauweise
- Grundstücksgröße = 1.999 m²
- Wohn- und Gewerbefläche gesamt = ca. 1.100 m²
- Optionen: Gewerbeteil von ca. 640 m² - ca. 850 m³ / Wohnen von ca. 250 m² - ca. 460 m²
- Hauptgebäude mit Wohn- und Gewerbefläche
- Ausbaureserve im Dachgeschoss (Wohnen und/oder...
Weitere Informationen
Stichworte
Nutzfläche: 1.100,00 m², Gesamtfläche: 1.100,00 m², vermietbare Fläche: 1.100,00 m², Bürofläche: 1.100,00 m², Anzahl der Schlafzimmer: 4, Anzahl der Badezimmer: 2, Anzahl der separaten WCs: 3, Anzahl Balkone: 1, Anzahl Terrassen: 1, 3 Etagen
Sonstiges/Wohnen: Einliegerwohnung
Anbieter der Immobilie
DALEXIS ImmobilienService GmbH
Hirtenweg 6, 82031 Grünwald

Online-ID: 2l36p5x
Referenznummer: 7408
Finde Angebote wie dieses
Hier geht es zu unserem Impressum, den Allgemeinen Geschäftsbedingungen, den Hinweisen zum Datenschutz und nutzungsbasierter Online-Werbung.