
Lauser Immobilien
Herr Dennis Gärtner
+49 ···
Nr. anzeigenPreise & Kosten
Provision für Käufer
3,57 % vom Kaufpreis inkl. MwSt.
Lage
Das Dreifamilienhaus liegt auf dem Bopser, einer der begehrtesten Höhenlagen im Süden Stuttgarts.
Die exponierte Wohnlage zeichnet sich durch ihre unmittelbare Nähe zum Stadtzentrum und durch ihre ruhige, grüne Umgebung aus. In fußläufiger Entfernung befindet sich der Weißenburgpark mit dem wunderschönen Teehaus. Von...
Das Haus
Kategorie
Mehrfamilienhaus
Baujahr
1956
Bezug
nach Vereinbarung
Energie & Heizung
Warum sehe ich diese Anzeige? – Du siehst diese Anzeige basierend auf Ihrer Navigation auf unserer Website und den Suchkriterien, die du verwendet hast.
Energieausweistyp
Bedarfsausweis
Gebäudetyp
Wohngebäude
Gültigkeit
bis 21.11.2027
Effizienzklasse
F
Endenergiebedarf
190,00 kWh/(m²·a)
Weitere Energiedaten
Energieträger
Elektro, Gas
Details
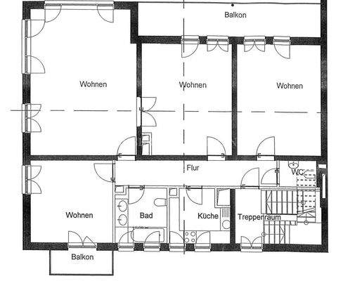
Objektbeschreibung
Zum Verkauf kommt ein aufgeteiltes, sehr gepflegtes Drei-Familien-Haus in gefragter Aussichtslage von Stuttgart-Süd. Alle Wohneinheiten sind vermietet. Die Wohnung im Dachgeschoss wird ca. August 2025 frei. Die Wohnung im Gartengeschoss (UG) und Erdgeschoss wird von der jetzigen Eigentümerin bewohnt. Nach Verkauf möchte sie...
Preisinformation
1 Garagenstellplatz
Ist-Mieteinnahmen pro Jahr: 72.000,00 EUR
Weitere Informationen
Sonstiges
4 Kellerräume
1 großer Gewölbekeller
1 schmale Einzelgarage
Anbieter der Immobilie

Lauser Immobilien
Laustraße 22, 70597 Stuttgart
Online-ID: 2l39b5c
Referenznummer: 5354
Finde Angebote wie dieses
Hier geht es zu unserem Impressum, den Allgemeinen Geschäftsbedingungen, den Hinweisen zum Datenschutz und nutzungsbasierter Online-Werbung.