
WAV Gemeinnützige Bau- und Siedlungsgenossenschaft "Waldviertel"
WAV Gemeinnützige Bau- u. Siedlungsgenossenschaft
+43 ···
Nr. anzeigenPreise & Kosten
Kaution
5.400,00
Warum sehe ich diese Anzeige? – Du siehst diese Anzeige basierend auf Ihrer Navigation auf unserer Website und den Suchkriterien, die du verwendet hast.
Wohnanlage
Energie & Heizung
Warum sehe ich diese Anzeige? – Du siehst diese Anzeige basierend auf Ihrer Navigation auf unserer Website und den Suchkriterien, die du verwendet hast.
Heizwärmebedarf (HWB)
17,00 kWh/(m²·a)
Details
Objektbeschreibung
Kurzbeschreibung
WAV | Schweiggers | WH 4 | Top 5
Objekt
WOHNZUSCHUSS beantragen!!!
Unsere Wohnungen und Reihenhäuser sind vom Land NÖ großzügig gefördert.
Zudem haben Sie die Möglichkeit, Wohnzuschuss (von Familiengröße und Einkommen abhängig) zu beantragen. Dieser verringert ggf. die Miete...
Ausstattung
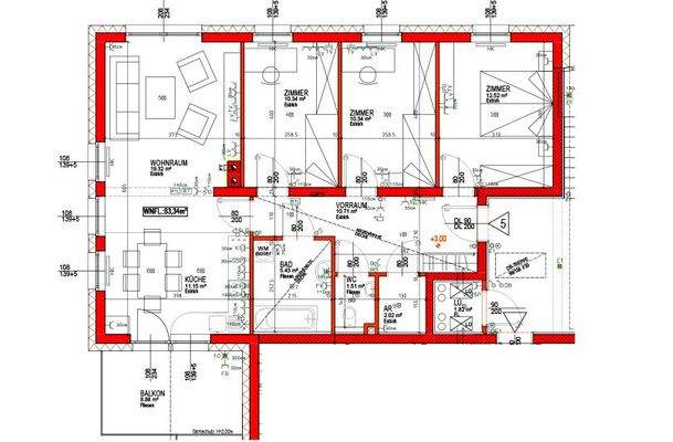
kontroll. Wohnraumlüftung, Heizung: Nahwärme, Trockenraum, Kellerabteil, Kinderwagen/Fahrradraum, Stellplatz - Tiefgarage, 4 Zimmer, Abstellraum, Balkon
Preisinformation
Miete inkl. Betriebskosten u. USt, exkl. Strom/Heizung
Weitere Informationen
Sonstiges
maximaler Wohnzuschuss: EUR 378,-
Stichworte
Wohnungsnr.: 5
Online-ID: 2l3de59
Referenznummer: WAV | Schweiggers | WH 4 | Top 5
Finde Angebote wie dieses
Hier geht es zu unserem Impressum, den Allgemeinen Geschäftsbedingungen, den Hinweisen zum Datenschutz und nutzungsbasierter Online-Werbung.