
ZIMA Wohn Baugesellschaft mbH
Herr Christian Schenk
+43 ···
Nr. anzeigenPreise & Kosten
Provision für Käufer
provisionsfrei
Die Wohnung
Wohnungslage
Erdgeschoss
Wohnanlage
Details
Objektbeschreibung
Modern, offen, durchdacht - das Neubauprojekt Flurstraße bietet ein stilvolles Zuhause für jede Lebensphase. Inmitten einer idyllischen, ruhigen Umgebung nahe dem Alten Rhein und mit attraktiver Infrastruktur erleben Sie hier modernes Wohnen auf hohem Niveau.
Stilvoller Wohngenuss mit viel Freiraum:
Inmitten...
Preisinformation
1 Tiefgaragenstellplatz, Kaufpreis: 27.000,00 EUR
Weitere Informationen
Stichworte
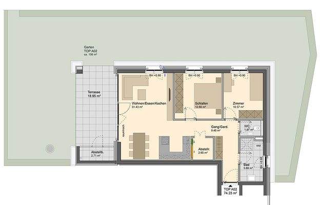
Anzahl Terrassen: 1, Balkon-Terrassen-Fläche: 18,95 m², Gartenfläche: 156,00 m², Kellerfläche: 6,66 m², Bundesland: Vorarlberg
Dokumente
Anbieter der Immobilie

ZIMA Wohn Baugesellschaft mbH
Lustenauerstraße 64, 6850 DORNBIRN
Online-ID: 2l3e553
Referenznummer: 929-A02
Finde Angebote wie dieses
Günstige Immobilienfinanzierung einfach online berechnen
Persönliches Angebot berechnenWarum sehe ich diese Werbung? – Du siehst diese Werbung basierend auf Deiner Navigation auf unserer Website und der von Dir verwendeten Suchkriterien.
Diese Werbung wird bezahlt von durchblicker
Werbung melden
Hier geht es zu unserem Impressum, den Allgemeinen Geschäftsbedingungen, den Hinweisen zum Datenschutz und nutzungsbasierter Online-Werbung.