

Immo Heller
Herr Johannes Heller
+49 ···
Nr. anzeigenPreise & Kosten
Provision für Käufer
3,57 inkl. MwSt.
Die Industriefläche
Kategorie
Lagerhalle
Baujahr
1972
Bezug
sofort
Energie & Heizung
Warum sehe ich diese Anzeige? – Du siehst diese Anzeige basierend auf Ihrer Navigation auf unserer Website und den Suchkriterien, die du verwendet hast.
Wärme
Strom
Energieausweistyp
Verbrauchsausweis
Gebäudetyp
Nicht-Wohngebäude
Baujahr laut Energieausweis
1972
Wesentliche Energieträger
Öl
Gültigkeit
18.10.2024 bis 18.10.2034
Endenergieverbrauch (Wärme)
129,20 kWh/(m²·a) - Warmwasser enthalten
Endenergieverbrauch (Strom)
403,00 kWh/(m²·a) - Warmwasser enthalten
Weitere Energiedaten
Energieträger
Öl
Heizungsart
Zentralheizung
Details
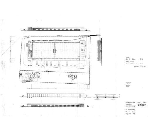
Objektbeschreibung
Lagerhalle mit LKW-Werkstatt und Bürogebäude
Gewerbehalle mit Bürogebäude in der Friedrich-König-Straße 17 in Würzburg (Neuer Hafen).
Dieses ehemals für eine Spedition errichtete und ausgelegte Ensemble punktet mit folgenden Eckdaten:
6.793 m² Nutzfläche
17.974 m² Grundstücksfläche
1.428 m²...
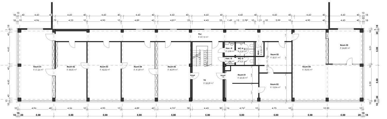
Weitere Informationen
Stichworte
Nutzfläche: 6.997,37 m², Gesamtfläche: 6.997,37 m², Bürofläche: 2.132,00 m², Hallenhöhe: 6,82 m
Sonstiges: EDV-Verkabelung
Anbieter der Immobilie
Immo Heller
Eichhornstraße 4, 97070 Würzburg

Online-ID: 2l3ek5u
Referenznummer: 5464#H6tGt
Finde Angebote wie dieses
Hier geht es zu unserem Impressum, den Allgemeinen Geschäftsbedingungen, den Hinweisen zum Datenschutz und nutzungsbasierter Online-Werbung.