
Rahn Immobilien GmbH & Co.KG
Herr Pavel Vakulich
023 ···
Nr. anzeigenPreise & Kosten
Provision für Mieter
provisionsfrei
Warum sehe ich diese Anzeige? – Du siehst diese Anzeige basierend auf Ihrer Navigation auf unserer Website und den Suchkriterien, die du verwendet hast.
Lage
Zentrale Lage an der verkehrsberuhigten Mittelstraße in Gevelsberg. Sehr gute Anbindungen an öffentliche Verkehrsmittel und S-Bahn. Die Anschlussstellen der Autobahnen A1, A43 und A46 sind ca. 5 bis 15 Minuten mit dem Auto entfernt.
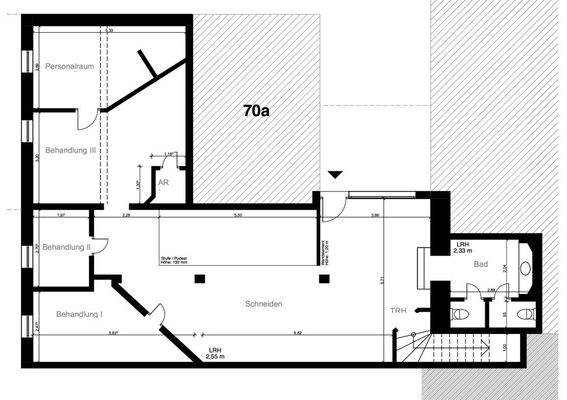
Die Ladenfläche
Kategorie
Laden
Baujahr
1904
Bezug
sofort
Erdgeschoss
Energie & Heizung
Warum sehe ich diese Anzeige? – Du siehst diese Anzeige basierend auf Ihrer Navigation auf unserer Website und den Suchkriterien, die du verwendet hast.
Wärme
Energieausweistyp
Bedarfsausweis
Gebäudetyp
Nicht-Wohngebäude
Baujahr laut Energieausweis
1904
Wesentliche Energieträger
ERDGAS_LEICHT
Gültigkeit
bis 26.08.2026
Endenergiebedarf (Wärme)
218,50 kWh/(m²·a)
Weitere Energiedaten
Energieträger
Gas
Details
Objektbeschreibung
Willkommen zu Ihrer neuen Geschäftsmöglichkeit im Herzen von Gevelsberg! Diese beeindruckende Ladenfläche bietet Ihnen eine hervorragende Gelegenheit, Ihr Gewerbe in einem charmanten, gut gelegenen Gebäude zu präsentieren.
Das Objekt erstreckt sich über das Erdgeschoss und das Untergeschoss, wobei letzteres über einen...
Ausstattung
3 Außenstellplätze können zusätzlich angemietet werden
Preisinformation
3 Stellplätze
Nettokaltmiete: 1.740,00 EUR
Weitere Informationen
Stichworte
Gesamtfläche: 193,00 m², vermietbare Fläche: 193,00 m², Bürofläche: 1,00 m², Anzahl der Gewerbeeinheiten: 1
Anbieter der Immobilie
Online-ID: 2l3fv5u
Referenznummer: M 2381_1
Finde Angebote wie dieses
Hier geht es zu unserem Impressum, den Allgemeinen Geschäftsbedingungen, den Hinweisen zum Datenschutz und nutzungsbasierter Online-Werbung.