
Sabine Zipf Immobilien
Frau Sabine Zipf
+49 ···
Nr. anzeigenPreise & Kosten
Provision für Käufer
3,57 % inkl. MwSt.
Lage
Verkehrsgünstige Lage am Stadtrand von Frankfurt/M., Stadtteil Eschersheim.
Sie erreichen vom Wohnhaus in 5-7 Minuten die Autobahn A 661, eine Bushaltestelle befindet sich in unmittelbarer Nähe.
Die nächste U-Bahn-Haltestelle mit Verbindungen nach Frankfurt - Innenstadt ist zu Fuß in ca 10 Minuten erreichbar...
Das Haus
Kategorie
Doppelhaushälfte
Baujahr
1954
Bezug
ab sofort
Energie & Heizung
Warum sehe ich diese Anzeige? – Du siehst diese Anzeige basierend auf Ihrer Navigation auf unserer Website und den Suchkriterien, die du verwendet hast.
Energieausweistyp
Bedarfsausweis
Gebäudetyp
Wohngebäude
Baujahr laut Energieausweis
1954
Wesentliche Energieträger
Gas
Gültigkeit
25.07.2023 bis 24.07.2033
Effizienzklasse
H
Endenergiebedarf
342,70 kWh/(m²·a)
Weitere Energiedaten
Haustyp
Massivhaus
Energieträger
Gas
Heizungsart
Zentralheizung
Details
Objektbeschreibung
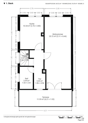
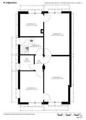
Zum Verkauf kommt ein gepflegtes Einfamilienwohnhaus (Doppelhaushälfte) am Stadtrand von Frankfurt-Eschersheim ( Frankfurt Nord-Mitte ) gelegen. Das Wohnhaus ist im Jahr 1954 in massiver Bauweise errichtet worden.
Es stehen Ihnen ca. 105 qm Wohnfläche zur Verfügung, die sich nahezu gleichmäßig auf das Erd- und...
Preisinformation
2 Stellplätze
Weitere Informationen
Stichworte
Stellplatz vorhanden, Anzahl der Schlafzimmer: 4, Anzahl der Badezimmer: 2, Anzahl Balkone: 1, Balkon-Terrassen-Fläche: 12,00 m², Kellerfläche: 58,00 m², 3 Etagen, Stadtrandlage, modernisiert: 2024, modernisiert
Anbieter der Immobilie
Sabine Zipf Immobilien
Im Ziegelhaus 13, 63571 Gelnhausen
Online-ID: 2l3hq5j
Referenznummer: 6836#uHjLJD
Finde Angebote wie dieses
Hier geht es zu unserem Impressum, den Allgemeinen Geschäftsbedingungen, den Hinweisen zum Datenschutz und nutzungsbasierter Online-Werbung.