
Blömer & Bornhorst OHG
Herr Reinhard C. Bornhorst
004 ···
Nr. anzeigenPreise & Kosten
Provision für Käufer
3,57 inkl. MwSt.
Lage
Großenkneten ist eine attraktive Gemeinde im Landkreis Oldenburg (Niedersachsen) mit rund 15.600 Einwohnern (Stand: Ende 2024). Die Lage im Städtedreieck Bremen - Oldenburg - Osnabrück sowie die Nähe zu Mittelzentren wie Cloppenburg, Wildeshausen und Vechta machen den Ort besonders interessant für Berufspendler und...
Das Haus
Kategorie
Mehrfamilienhaus
Baujahr
1983
Bezug
Sofort
Energie & Heizung
Warum sehe ich diese Anzeige? – Du siehst diese Anzeige basierend auf Ihrer Navigation auf unserer Website und den Suchkriterien, die du verwendet hast.
Energieausweistyp
Verbrauchsausweis
Gebäudetyp
Wohngebäude
Baujahr laut Energieausweis
2014
Wesentliche Energieträger
GAS
Gültigkeit
bis 15.06.2031
Effizienzklasse
F
Endenergieverbrauch
161,70 kWh/(m²·a)
Weitere Energiedaten
Energieträger
Gas
Details
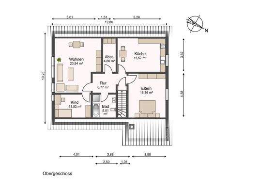
Objektbeschreibung
Dieses freistehende Einfamilienhaus mit Einliegerwohnung aus dem Jahr 1983 überzeugt mit rund 186 m² Wohnfläche und bietet vielfältige Gestaltungsmöglichkeiten - perfekt für Familien, Mehrgenerationenhaushalte oder alle, die großzügiges Wohnen schätzen.
Das Haus wurde in massiver Bauweise errichtet und steht auf einem...
Ausstattung
Erdgeschoss:
- Großzügige Diele mit 13,35 m²
- Praktischer Windfang (1,71 m²)
- Gäste-WC (1,53 m²)
- Separate Küche mit 9,89 m² - inklusive Einbauküche (im Kaufpreis enthalten)
- Hauswirtschaftsraum mit 12,18 m²
- Tageslichtbadezimmer mit Badewanne, Dusche, WC und Waschbecken (5,50 m²)
-...
Preisinformation
1 Garagenstellplatz
Weitere Informationen
Sonstiges
Sowohl vom Verkäufer, als auch vom Käufer ist eine Maklerprovision in Höhe von 3,57 % inkl. Mehrwertsteuer bezogen auf den notariell beurkundeten Kaufpreis an das Maklerbüro Blömer & Bornhorst zu zahlen. Die Provision ist bei Vertragsabschluss verdient und fällig. Alle Angaben sind ohne Gewähr und basieren...
Anbieter der Immobilie
Blömer & Bornhorst OHG
Bremer Str. 12, 49377 Vechta
Online-ID: 2l3m85q
Referenznummer: 488
Finde Angebote wie dieses
Hier geht es zu unserem Impressum, den Allgemeinen Geschäftsbedingungen, den Hinweisen zum Datenschutz und nutzungsbasierter Online-Werbung.