


1 / 6



1 / 6
Wohnung zum Kauf - Erstbezug236220 €236.220 €3.100 €/m²2 Zimmer • 76,2 m²
236220 €236.220 €
3.100 €/m²
2 Zimmer • 76,2 m²
Moderne 2-Zimmer Wohnung mit groĂźzĂĽgigen Terrassen - Zvezdara, Belgrad
Moderne 2-Zimmer Wohnung mit groĂźzĂĽgigen Terrassen - Zvezdara, Belgrad
In einer ruhigen und zugleich zentralen Lage von Belgrad, in der Paje Jovanovica Straße 28, entsteht ein exklusives Wohnhaus mit nur fünf Einheiten. Das Apartment S5 überzeugt mit 76,20 m² Wohnfläche und zwei großzügigen Terrassen - perfekt für alle, die urbanes Wohnen mit einem Hauch von Privatsphäre und Freiraum verbinden möchten. Eine ideale Wahl für Eigennutzer oder Investoren, die Wert auf Qualität und Nachhaltigkeit legen.
Highlights:
. Adresse: Paje Jovanovica , Zvezdara, Belgrad
. Wohnfläche: ca. 76,20 m²
. Kaufpreis: € 3100/m² zzgl. MwSt.
. Terrassen: 2 Terrassen (gesamt ca. 31,29 m²)
. Privater Garten (EG-Einheit): ca. 130 m², € 200/m²
. Parkplatz: € 18.000
. Kosten für Käufer: nur Steuer (keine Provision)
. Steuervorteil: MwSt.-RĂĽckerstattung beim Kauf der ersten Wohnung
. Fertigstellung: Anfang Mai 2026
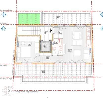
Raumaufteilung Apartment (76,20 m² + 31,29 m² Terrassen):
. Eingang: 2,43 m² (Parkett, Verputz)
. Wohnzimmer, Esszimmer & Küche: 24,13 m² (Parkett, Verputz)
. Abstellraum/Degagement: 2,40 m² (Parkett, Verputz)
. Schlafzimmer: 12,47 m² (Parkett, Verputz)
. Badezimmer: 3,48 m² (Keramik)
. Vordere Terrasse: 19,18 m² (Keramik, Fassade)
. Hintere Terrasse: 12,11 m² (Keramik, Fassade)
Weitere Flächen im Gebäude:
. Unterirdische Garage: 6 Stellplätze à ca. 12,5 m² + Verkehrsflächen (gesamt ca. 180,60 m²)
. Gemeinschaftsräume: Aufenthaltsraum 7,56 m² + WC 1,59 m² (gesamt ca. 9,15 m²)
. Außenbereiche: Vorderhof 13,43 m² + Hinterhof 126,34 m² (gesamt ca. 139,77 m²)
________________________________________
Modern 2-Bedroom Apartment with Spacious Terraces - Zvezdara, Belgrade
At Paje Jovanovica Street 28, a premium residential building with only five units is under construction. Apartment S5 offers 76.20 m² of living space and two spacious terraces, providing the perfect combination of indoor comfort and outdoor living. Ideal for buyers who seek both lifestyle and investment value in one of Belgrade's most attractive neighborhoods.
Key Features:
. Address: Paje Jovanovica , Zvezdara, Belgrade
. Living Area: approx. 76.20 m²
. Price: € 3,100/m² + VAT
. Terraces: 2 terraces (total approx. 31.29 m²)
. Private Garden (ground floor unit): approx. 130 m², € 200/m²
. Parking Space: € 18,000
. Buyer's cost: only tax (no commission)
. Tax Benefit: VAT refund available for the first apartment purchase
. Completion Date: Beginning of May 2026
Layout Apartment (76.20 m² + 31.29 m² terraces):
. Entrance: 2.43 m² (parquet, plaster)
. Living Room, Dining & Kitchen: 24.13 m² (parquet, plaster)
. Storage/Degagement: 2.40 m² (parquet, plaster)
. Bedroom: 12.47 m² (parquet, plaster)
. Bathroom: 3.48 m² (ceramics)
. Front Terrace: 19.18 m² (ceramics, façade)
. Rear Terrace: 12.11 m² (ceramics, façade)
Additional Areas in the Building:
. Underground Garage: 6 parking spaces (each approx. 12.5 m²) + circulation areas (total approx. 180.60 m²)
. Common Areas: residents' room 7.56 m² + WC 1.59 m² (total approx. 9.15 m²)
. Outdoor Spaces: front yard 13.43 m² + backyard 126.34 m² (total approx. 139.77 m²)
________________________________________
Dvosoban stan sa prostranim terasama - Zvezdara, Beograd
Na adresi Paje Jovanovica 28, u Zvezdari, gradi se luksuzni stambeni objekat sa samo pet jedinica. Stan S5, povrsine 76,20 m² sa dve terase ukupne povrsine 31,29 m², pruza savrsen spoj modernog enterijera i uzivanja na otvorenom. Ovaj stan je odlican izbor za one koji traze kvalitetan zivotni prostor, ali i sigurnu investiciju na prestiznoj lokaciji.
Detalji:
. Adresa: Paje Jovanovica , Zvezdara, Beograd
. Povrsina stana: ca. 76,20 m²
. Cena: € 3.100/m² + PDV
. Terase: 2 terase (ukupno ca. 31,29 m²)
. Privatno dvoriste (za stan u prizemlju): ca. 130 m², € 200/m²
. Parking mesto: € 18.000
. Trosak kupca: samo porez (nema provizije)
. Povracaj PDV-a: kupcima prvog stana vraca se PDV
. Rok zavrsetka: pocetak maja 2026.
Raspored prostorija stana (76,20 m² + 31,29 m² terasa):
. Ulaz: 2,43 m² (parket, malter)
. Dnevna soba, trpezarija i kuhinja: 24,13 m² (parket, malter)
. Degazman: 2,40 m² (parket, malter)
. Soba za dve osobe: 12,47 m² (parket, malter)
. Kupatilo: 3,48 m² (keramika)
. Prednja terasa: 19,18 m² (keramika, fasada)
. Zadnja terasa: 12,11 m² (keramika, fasada)
Dodatne povrsine objekta:
. Podzemna garaza: 6 parking mesta (svako ca. 12,5 m²) + komunikacije (ukupno ca. 180,60 m²)
. Zajednicke prostorije: prostorija 7,56 m² + WC 1,59 m² (ukupno ca. 9,15 m²)
. Dvoriste: prednje dvoriste 13,43 m² + zadnje dvoriste 126,34 m² (ukupno ca. 139,77 m²)
________________________________________
In einer ruhigen und zugleich zentralen Lage von Belgrad, in der Paje Jovanovica Straße 28, entsteht ein exklusives Wohnhaus mit nur fünf Einheiten. Das Apartment S5 überzeugt mit 76,20 m² Wohnfläche und zwei großzügigen Terrassen - perfekt für alle, die urbanes Wohnen mit einem Hauch von Privatsphäre und Freiraum verbinden möchten. Eine ideale Wahl für Eigennutzer oder Investoren, die Wert auf Qualität und Nachhaltigkeit legen.
Highlights:
. Adresse: Paje Jovanovica , Zvezdara, Belgrad
. Wohnfläche: ca. 76,20 m²
. Kaufpreis: € 3100/m² zzgl. MwSt.
. Terrassen: 2 Terrassen (gesamt ca. 31,29 m²)
. Privater Garten (EG-Einheit): ca. 130 m², € 200/m²
. Parkplatz: € 18.000
. Kosten für Käufer: nur Steuer (keine Provision)
. Steuervorteil: MwSt.-RĂĽckerstattung beim Kauf der ersten Wohnung
. Fertigstellung: Anfang Mai 2026
Raumaufteilung Apartment (76,20 m² + 31,29 m² Terrassen):
. Eingang: 2,43 m² (Parkett, Verputz)
. Wohnzimmer, Esszimmer & Küche: 24,13 m² (Parkett, Verputz)
. Abstellraum/Degagement: 2,40 m² (Parkett, Verputz)
. Schlafzimmer: 12,47 m² (Parkett, Verputz)
. Badezimmer: 3,48 m² (Keramik)
. Vordere Terrasse: 19,18 m² (Keramik, Fassade)
. Hintere Terrasse: 12,11 m² (Keramik, Fassade)
Weitere Flächen im Gebäude:
. Unterirdische Garage: 6 Stellplätze à ca. 12,5 m² + Verkehrsflächen (gesamt ca. 180,60 m²)
. Gemeinschaftsräume: Aufenthaltsraum 7,56 m² + WC 1,59 m² (gesamt ca. 9,15 m²)
. Außenbereiche: Vorderhof 13,43 m² + Hinterhof 126,34 m² (gesamt ca. 139,77 m²)
________________________________________
Modern 2-Bedroom Apartment with Spacious Terraces - Zvezdara, Belgrade
At Paje Jovanovica Street 28, a premium residential building with only five units is under construction. Apartment S5 offers 76.20 m² of living space and two spacious terraces, providing the perfect combination of indoor comfort and outdoor living. Ideal for buyers who seek both lifestyle and investment value in one of Belgrade's most attractive neighborhoods.
Key Features:
. Address: Paje Jovanovica , Zvezdara, Belgrade
. Living Area: approx. 76.20 m²
. Price: € 3,100/m² + VAT
. Terraces: 2 terraces (total approx. 31.29 m²)
. Private Garden (ground floor unit): approx. 130 m², € 200/m²
. Parking Space: € 18,000
. Buyer's cost: only tax (no commission)
. Tax Benefit: VAT refund available for the first apartment purchase
. Completion Date: Beginning of May 2026
Layout Apartment (76.20 m² + 31.29 m² terraces):
. Entrance: 2.43 m² (parquet, plaster)
. Living Room, Dining & Kitchen: 24.13 m² (parquet, plaster)
. Storage/Degagement: 2.40 m² (parquet, plaster)
. Bedroom: 12.47 m² (parquet, plaster)
. Bathroom: 3.48 m² (ceramics)
. Front Terrace: 19.18 m² (ceramics, façade)
. Rear Terrace: 12.11 m² (ceramics, façade)
Additional Areas in the Building:
. Underground Garage: 6 parking spaces (each approx. 12.5 m²) + circulation areas (total approx. 180.60 m²)
. Common Areas: residents' room 7.56 m² + WC 1.59 m² (total approx. 9.15 m²)
. Outdoor Spaces: front yard 13.43 m² + backyard 126.34 m² (total approx. 139.77 m²)
________________________________________
Dvosoban stan sa prostranim terasama - Zvezdara, Beograd
Na adresi Paje Jovanovica 28, u Zvezdari, gradi se luksuzni stambeni objekat sa samo pet jedinica. Stan S5, povrsine 76,20 m² sa dve terase ukupne povrsine 31,29 m², pruza savrsen spoj modernog enterijera i uzivanja na otvorenom. Ovaj stan je odlican izbor za one koji traze kvalitetan zivotni prostor, ali i sigurnu investiciju na prestiznoj lokaciji.
Detalji:
. Adresa: Paje Jovanovica , Zvezdara, Beograd
. Povrsina stana: ca. 76,20 m²
. Cena: € 3.100/m² + PDV
. Terase: 2 terase (ukupno ca. 31,29 m²)
. Privatno dvoriste (za stan u prizemlju): ca. 130 m², € 200/m²
. Parking mesto: € 18.000
. Trosak kupca: samo porez (nema provizije)
. Povracaj PDV-a: kupcima prvog stana vraca se PDV
. Rok zavrsetka: pocetak maja 2026.
Raspored prostorija stana (76,20 m² + 31,29 m² terasa):
. Ulaz: 2,43 m² (parket, malter)
. Dnevna soba, trpezarija i kuhinja: 24,13 m² (parket, malter)
. Degazman: 2,40 m² (parket, malter)
. Soba za dve osobe: 12,47 m² (parket, malter)
. Kupatilo: 3,48 m² (keramika)
. Prednja terasa: 19,18 m² (keramika, fasada)
. Zadnja terasa: 12,11 m² (keramika, fasada)
Dodatne povrsine objekta:
. Podzemna garaza: 6 parking mesta (svako ca. 12,5 m²) + komunikacije (ukupno ca. 180,60 m²)
. Zajednicke prostorije: prostorija 7,56 m² + WC 1,59 m² (ukupno ca. 9,15 m²)
. Dvoriste: prednje dvoriste 13,43 m² + zadnje dvoriste 126,34 m² (ukupno ca. 139,77 m²)
________________________________________
Merkmale
- Dachgeschoss
- Terrasse
Grundrisse
Grundrisse
1 / 2
Realisiere Dein Projekt
Bausubstanz und Energie
Der Anbieter hat keine Informationen zum Energieverbrauch bereit gestellt.
- Baujahr2026
- Zustand der ImmobilieErstbezug
Preisdetails
Kaufpreis
236220 €236.220 €
3.100 €/m²
Provision für Käufer
Bitte beachte, das Angebot kann bei Vertragsabschluss die Zahlung einer Provision beinhalten. Weitere Informationen erhältst Du vom Anbieter.
Lage

Zvezdara (11000)

Die Karte ist nicht verfĂĽgbar.
Weitere Informationen
Sonstiges
Provisionsfrei für den Käufer!
Kontaktieren Sie uns fĂĽr einen Besichtigungstermin!
Für die Vereinbarung eines Besichtigungstermins freuen wir uns auf Ihre schriftliche Anfrage! Senden Sie uns gerne direkt Ihre Terminwünsche, damit wir die Besichtigung optimal nach Ihren Vorstellungen gestalten können.
Exklusive Immobilien, die Sie nicht auf gängigen Plattformen finden
Entdecken Sie besondere Immobilienobjekte, die wir Ihnen diskret und exklusiv auf unserer Website präsentieren.
Besuchen Sie uns auf www.saqura.at für außergewöhnliche Angebote.
Wichtige Hinweise zur Zusammenarbeit
Wir möchten Sie darauf hinweisen, dass zwischen uns und dem Eigentümer/der Eigentümerin ein wirtschaftliches Naheverhältnis besteht. Dies beeinträchtigt jedoch keinesfalls unsere gesetzlichen Pflichten als Doppelmakler. Änderungen und Irrtümer vorbehalten.
Ihre Ansprechpartnerin:
Frau Olivera Jovicic
Mobil: +43 664 45 45 920
E-Mail: office@saqura.at
Haftungsausschluss:
Sämtliche Angaben zur Liegenschaft stammen vom Eigentümer. Die SAQURA Immobilien GmbH übernimmt daher keine Haftung für die Richtigkeit, Vollständigkeit oder Aktualität der zur Verfügung gestellten Informationen.
Information zum Fernabsatz- und Auswärtsgeschäfte-Gesetz:
Seit Inkrafttreten der neuen EU-Richtlinien am 13. Juni 2014 sind wir verpflichtet, Ihnen die Objektunterlagen erst nach Ihrer Bestätigung zuzuleiten, dass Sie unsere Dienstleistungen in Anspruch nehmen möchten und über Ihr Rücktrittsrecht informiert wurden.
Datenschutzhinweis:
Wir legen höchsten Wert auf den Schutz Ihrer persönlichen Daten. Ihre Daten werden gemäß den geltenden datenschutzrechtlichen Bestimmungen verarbeitet.
Unsere Allgemeinen Geschäftsbedingungen sind sowohl im Exposé als auch auf unserer Website einsehbar und werden im Falle eines Vertragsabschlusses Bestandteil der Vereinbarung.
Wir freuen uns darauf, Ihnen diese besondere Immobilie persönlich vorzustellen.
--
No commission for buyers!
Contact us to schedule a viewing!
We look forward to receiving your written request to arrange a viewing appointment. Please send us your preferred dates so we can tailor the visit to your needs.
Exclusive properties you won't find on common platforms
Discover exceptional real estate that we discreetly and exclusively present on our website.
Visit us at www.saqura.at for extraordinary offers.
Important collaboration notes
Please note that there is an economic relationship between us and the property owner. This does not affect our statutory duties as dual agents. Subject to changes and errors.
Your contact person:
Mrs. Olivera Jovicic
Mobile: +43 664 45 45 920
E-mail: office@saqura.at
Disclaimer:
All information about the property is provided by the owner. SAQURA Immobilien GmbH assumes no liability for the accuracy, completeness, or timeliness of the information provided.
Information on the Distance Selling and Off-Premises Contracts Act:
Since the new EU directives came into effect on June 13, 2014, we are required to provide property documents only after you have confirmed that you wish to use our services and have been informed of your right of withdrawal.
Data protection notice:
We highly value the protection of your personal data. Your data will be processed in accordance with applicable data protection laws.
Our General Terms and Conditions are available in the exposé as well as on our website and will form part of the agreement in the event of a contract conclusion.
We look forward to personally presenting this exceptional property to you.
--
Bez provizije za kupce!
Kontaktirajte nas radi zakazivanja termina za razgledanje!
Radujemo se Vasem pisanom zahtevu za organizaciju razgledanja. Molimo Vas da nam posaljete zeljene termine kako bismo razgledanje organizovali prema Vasim zeljama.
Ekskluzivne nekretnine koje nec?ete pronac?i na uobicajenim platformama
Otkrijte posebne nekretnine koje Vam diskretno i ekskluzivno predstavljamo na nasem veb-sajtu.
Posetite nas na www.saqura.at za izuzetnu ponudu.
Vazne napomene o saradnji
Zelimo da Vas obavestimo da izmedu nas i vlasnika/vlasnice postoji ekonomska povezanost. Ovo ni na koji nacin ne utice na nase zakonske obaveze kao dvostrukog posrednika. Promene i greske su moguc?e.
Vasa kontakt osoba:
Gospoda Olivera Jovicic?
Mobilni: +43 664 45 45 920
E-posta: office@saqura.at
Odricanje od odgovornosti:
Svi podaci o nekretnini poticu od vlasnika. SAQURA Immobilien GmbH ne preuzima odgovornost za tacnost, potpunost ili aktuelnost pruzenih informacija.
Informacije o Zakonu o prodaji na daljinu i ugovorima zakljucenim van poslovnih prostorija:
Od stupanja na snagu novih direktiva EU 13. juna 2014. godine, obavezni smo da Vam dokumentaciju o nekretnini dostavimo tek nakon Vase potvrde da zelite da koristite nase usluge i da ste informisani o pravu na odustajanje.
Napomena o zastiti podataka:
Veliki znacaj pridajemo zastiti Vasih licnih podataka. Vasi podaci c?e biti obradeni u skladu sa vazec?im propisima o zastiti podataka.
Nasi Opsti uslovi poslovanja dostupni su u brosuri kao i na nasem veb-sajtu i postaju sastavni deo ugovora u slucaju zakljucenja.
Radujemo se sto c?emo Vam licno predstaviti ovu izuzetnu nekretninu. Stichworte Anzahl der Schlafzimmer: 1, Anzahl der Badezimmer: 1, Anzahl Terrassen: 2, Balkon-Terrassen-Fläche: 31,29 m²
Kontaktieren Sie uns fĂĽr einen Besichtigungstermin!
Für die Vereinbarung eines Besichtigungstermins freuen wir uns auf Ihre schriftliche Anfrage! Senden Sie uns gerne direkt Ihre Terminwünsche, damit wir die Besichtigung optimal nach Ihren Vorstellungen gestalten können.
Exklusive Immobilien, die Sie nicht auf gängigen Plattformen finden
Entdecken Sie besondere Immobilienobjekte, die wir Ihnen diskret und exklusiv auf unserer Website präsentieren.
Besuchen Sie uns auf www.saqura.at für außergewöhnliche Angebote.
Wichtige Hinweise zur Zusammenarbeit
Wir möchten Sie darauf hinweisen, dass zwischen uns und dem Eigentümer/der Eigentümerin ein wirtschaftliches Naheverhältnis besteht. Dies beeinträchtigt jedoch keinesfalls unsere gesetzlichen Pflichten als Doppelmakler. Änderungen und Irrtümer vorbehalten.
Ihre Ansprechpartnerin:
Frau Olivera Jovicic
Mobil: +43 664 45 45 920
E-Mail: office@saqura.at
Haftungsausschluss:
Sämtliche Angaben zur Liegenschaft stammen vom Eigentümer. Die SAQURA Immobilien GmbH übernimmt daher keine Haftung für die Richtigkeit, Vollständigkeit oder Aktualität der zur Verfügung gestellten Informationen.
Information zum Fernabsatz- und Auswärtsgeschäfte-Gesetz:
Seit Inkrafttreten der neuen EU-Richtlinien am 13. Juni 2014 sind wir verpflichtet, Ihnen die Objektunterlagen erst nach Ihrer Bestätigung zuzuleiten, dass Sie unsere Dienstleistungen in Anspruch nehmen möchten und über Ihr Rücktrittsrecht informiert wurden.
Datenschutzhinweis:
Wir legen höchsten Wert auf den Schutz Ihrer persönlichen Daten. Ihre Daten werden gemäß den geltenden datenschutzrechtlichen Bestimmungen verarbeitet.
Unsere Allgemeinen Geschäftsbedingungen sind sowohl im Exposé als auch auf unserer Website einsehbar und werden im Falle eines Vertragsabschlusses Bestandteil der Vereinbarung.
Wir freuen uns darauf, Ihnen diese besondere Immobilie persönlich vorzustellen.
--
No commission for buyers!
Contact us to schedule a viewing!
We look forward to receiving your written request to arrange a viewing appointment. Please send us your preferred dates so we can tailor the visit to your needs.
Exclusive properties you won't find on common platforms
Discover exceptional real estate that we discreetly and exclusively present on our website.
Visit us at www.saqura.at for extraordinary offers.
Important collaboration notes
Please note that there is an economic relationship between us and the property owner. This does not affect our statutory duties as dual agents. Subject to changes and errors.
Your contact person:
Mrs. Olivera Jovicic
Mobile: +43 664 45 45 920
E-mail: office@saqura.at
Disclaimer:
All information about the property is provided by the owner. SAQURA Immobilien GmbH assumes no liability for the accuracy, completeness, or timeliness of the information provided.
Information on the Distance Selling and Off-Premises Contracts Act:
Since the new EU directives came into effect on June 13, 2014, we are required to provide property documents only after you have confirmed that you wish to use our services and have been informed of your right of withdrawal.
Data protection notice:
We highly value the protection of your personal data. Your data will be processed in accordance with applicable data protection laws.
Our General Terms and Conditions are available in the exposé as well as on our website and will form part of the agreement in the event of a contract conclusion.
We look forward to personally presenting this exceptional property to you.
--
Bez provizije za kupce!
Kontaktirajte nas radi zakazivanja termina za razgledanje!
Radujemo se Vasem pisanom zahtevu za organizaciju razgledanja. Molimo Vas da nam posaljete zeljene termine kako bismo razgledanje organizovali prema Vasim zeljama.
Ekskluzivne nekretnine koje nec?ete pronac?i na uobicajenim platformama
Otkrijte posebne nekretnine koje Vam diskretno i ekskluzivno predstavljamo na nasem veb-sajtu.
Posetite nas na www.saqura.at za izuzetnu ponudu.
Vazne napomene o saradnji
Zelimo da Vas obavestimo da izmedu nas i vlasnika/vlasnice postoji ekonomska povezanost. Ovo ni na koji nacin ne utice na nase zakonske obaveze kao dvostrukog posrednika. Promene i greske su moguc?e.
Vasa kontakt osoba:
Gospoda Olivera Jovicic?
Mobilni: +43 664 45 45 920
E-posta: office@saqura.at
Odricanje od odgovornosti:
Svi podaci o nekretnini poticu od vlasnika. SAQURA Immobilien GmbH ne preuzima odgovornost za tacnost, potpunost ili aktuelnost pruzenih informacija.
Informacije o Zakonu o prodaji na daljinu i ugovorima zakljucenim van poslovnih prostorija:
Od stupanja na snagu novih direktiva EU 13. juna 2014. godine, obavezni smo da Vam dokumentaciju o nekretnini dostavimo tek nakon Vase potvrde da zelite da koristite nase usluge i da ste informisani o pravu na odustajanje.
Napomena o zastiti podataka:
Veliki znacaj pridajemo zastiti Vasih licnih podataka. Vasi podaci c?e biti obradeni u skladu sa vazec?im propisima o zastiti podataka.
Nasi Opsti uslovi poslovanja dostupni su u brosuri kao i na nasem veb-sajtu i postaju sastavni deo ugovora u slucaju zakljucenja.
Radujemo se sto c?emo Vam licno predstaviti ovu izuzetnu nekretninu. Stichworte Anzahl der Schlafzimmer: 1, Anzahl der Badezimmer: 1, Anzahl Terrassen: 2, Balkon-Terrassen-Fläche: 31,29 m²
Weitere Services
Lust auf eine Besichtigung?
Eine Frage zur Immobilie?
Ăśber den Anbieter
Online-ID: 2l3nd5t
Referenznummer: 01364

SAQURA Immobilien GmbH
Wie zufrieden bist du mit dieser Seite (nicht mit der Immobilie selbst)?