

Wohnen in Vorpommern GmbH
Herr Sören Schuldt
038 ···
Nr. anzeigenPreise & Kosten
Provision für Käufer
2 % zzgl. MwSt.
Die Käuferprovision ist verdient und fällig mit notarieller Beurkundung.
Lage
Die Immobilie liegt in traumhafter Lage in Granzow, einem ruhigen Ortsteil der Stadt Mirow, mitten in der beliebten Mecklenburgischen Seenplatte. Ein absolutes Highlight: Der Mirower See ist nur etwa zwei Gehminuten entfernt - ein unschätzbarer Vorteil für alle, die das Leben am Wasser lieben. Ob morgendliches Schwimmen...
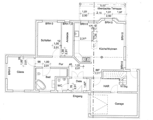
Das Haus
Kategorie
Einfamilienhaus
Baujahr
2024
Energie & Heizung
Warum sehe ich diese Anzeige? – Du siehst diese Anzeige basierend auf Ihrer Navigation auf unserer Website und den Suchkriterien, die du verwendet hast.
Energieausweistyp
Bedarfsausweis
Gebäudetyp
Wohngebäude
Baujahr laut Energieausweis
2019
Wesentliche Energieträger
Gas, Solarenergie
Gültigkeit
09.01.2019 bis 09.01.2029
Effizienzklasse
A
Endenergiebedarf
47,00 kWh/(m²·a)
Weitere Energiedaten
Haustyp
Massivhaus
Energieträger
Gas, Solar
Heizungsart
Fußbodenheizung, offener Kamin, Zentralheizung
Details
Objektbeschreibung
Inmitten der idyllischen Natur der Mecklenburgischen Seenplatte, nur einen Katzensprung vom malerischen Mirower See entfernt, präsentiert sich dieses luxuriöse Einfamilienhaus als wahres Traumdomizil. Das im Jahr 2024 fertiggestellte Haus überzeugt durch moderne Architektur, hochwertige Ausstattung und eine durchdachte...
Weitere Informationen
Sonstiges
Online-Streitbeilegung gemäß Art. 14 Abs. 1 ODR-VO: Die Europäische Kommission stellt unter https://ec.europa.eu/consumers/odr/main/index.cfm eine Plattform zur Online-Streitbeilegung (OS) bereit.
Verbraucherinformationen - https://ec.europa.eu/consumers/odr/main/index.cfm
Stichworte
Garage...
Anbieter der Immobilie

Online-ID: 2l3p55w
Referenznummer: 0275
Finde Angebote wie dieses
Hier geht es zu unserem Impressum, den Allgemeinen Geschäftsbedingungen, den Hinweisen zum Datenschutz und nutzungsbasierter Online-Werbung.