

die immobilie.
Herr Robert Vesely
+49 ···
Nr. anzeigenPreise & Kosten
Provision für Käufer
provisionsfrei
Lage
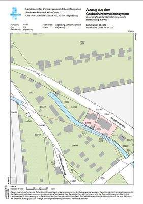
Die Insleber Straße in Magdeburg bietet eine ideale Kombination aus ruhiger Wohnlage und guter Anbindung an die Infrastruktur der Landeshauptstadt. In unmittelbarer Umgebung finden sich nur wenige Wohnhäuser sowie eine Kleingartenanlage - perfekt für alle, die in einer familienfreundlichen Nachbarschaft leben und dennoch auf...
Das Grundstück
Details
Objektbeschreibung
Dieses attraktive Baugrundstück mit einer Größe von ca. 828 m² bietet die perfekte Basis für den Bau Ihres neuen Einfamilienhauses. Bisher wurde das Grundstück als Garten genutzt und besticht durch einen idyllischen Obstbaumbestand, der sofort für eine natürliche, grüne Umgebung sorgt. Zwei vorhandene Lauben können...
Ausstattung
Grundstücksgröße: ca. 828 m²
ruhige, familienfreundliche Lage in Magdeburg
bebaubar mit Einfamilienhaus (nach §34 BauGB)
positiver Bauvorbescheid liegt vor
idyllischer Obstbaumbestand für natürliche Atmosphäre
erschlossenes Grundstück
Weitere Informationen
Sonstiges
Alle Angaben beruhen auf Eigentümerinformationen.
Anbieter der Immobilie
die immobilie.
Breiter Weg 227, 39104 Magdeburg

Online-ID: 2l3px5g
Referenznummer: 705
Finde Angebote wie dieses
Hier geht es zu unserem Impressum, den Allgemeinen Geschäftsbedingungen, den Hinweisen zum Datenschutz und nutzungsbasierter Online-Werbung.