
RUHR REAL GmbH
Herr Samuel Kruse
+49 ···
Nr. anzeigenPreise & Kosten
Provision für Mieter
provisionsfrei
Warum sehe ich diese Anzeige? – Du siehst diese Anzeige basierend auf Ihrer Navigation auf unserer Website und den Suchkriterien, die du verwendet hast.
Lage
Das Bürogebäude befindet sich im Citykern von Essen und in direkter Lage zur Essener Innenstadt. Der Limbecker Platz befindet sich nur wenige Gehminuten entfernt. Durch die zentrale Lage, bietet das Objekt eine hervorragende ÖPVN Anbindung. Die A40 und die B224 sind innerhalb von wenigen Minuten zu...
Büro-/Praxisfläche
Kategorie
Bürofläche
Baujahr
1912
Bezug
nach Vereinbarung
Energie & Heizung
Warum sehe ich diese Anzeige? – Du siehst diese Anzeige basierend auf Ihrer Navigation auf unserer Website und den Suchkriterien, die du verwendet hast.
Wärme
Strom
Energieausweistyp
Verbrauchsausweis
Gebäudetyp
Nicht-Wohngebäude
Baujahr laut Energieausweis
1912
Wesentliche Energieträger
Fernwärme
Gültigkeit
seit 21.03.2024
Endenergieverbrauch (Wärme)
81,20 kWh/(m²·a)
Endenergieverbrauch (Strom)
69,90 kWh/(m²·a)
Weitere Energiedaten
Energieträger
Fernwärme
Heizungsart
Zentralheizung
Details
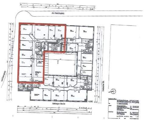
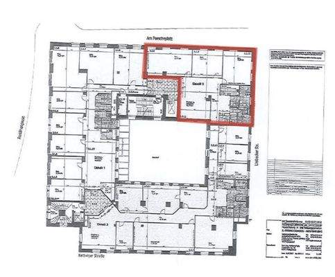
Objektbeschreibung
Die vakanten modern ausgebauten Büroflächen befinden sich im 3., 4. und 5. Obergeschoss dieses sehr gepflegten Büro- und Geschäftshauses, welche über zwei Personenaufzüge erschlossen werden. Die Altbauimmobilie wurde aufwendig vom Eigentümer modernisiert und ist als eine der stilvollsten Immobilien in der Essener Innenstadt...
Ausstattung
. Sonnenschutz: innenliegend, manuell
. Bodenbelag: Teppichboden
. Kabelführung: Bodentanks
. Verkabelung: Glasfaseranschluss, CAT-7
. Beleuchtung: Rasterleuchten
. Teeküche: voll ausgestattet
. Aufzug: Personenaufzug
. Barrierearm: ebenerdiger Zugang
. Heizungsart: Zentralheizung
. Kühlung /Lüftung...
Preisinformation
Nettokaltmiete: 12,95 EUR
Weitere Informationen
Sonstiges
Es gelten ausschließlich unsere AGB (www.ruhr-real.de/agb). Wir möchten Sie darauf hinweisen, dass die Angaben ausschließlich auf den uns vom Eigentümer übermittelten Unterlagen und Informationen basieren. Für Richtigkeit und Vollständigkeit übernehmen wir keine Gewähr. Zwischenvermietung...
Anbieter der Immobilie

RUHR REAL GmbH
Holsterhauser Platz 2, 45147 Essen
Online-ID: 2l3s35z
Referenznummer: 397/E6
Finde Angebote wie dieses
Hier geht es zu unserem Impressum, den Allgemeinen Geschäftsbedingungen, den Hinweisen zum Datenschutz und nutzungsbasierter Online-Werbung.