

Hubert Hammerl Immobilien & Grunewald Immobilien
Frau Leona Grunewald
036 ···
Nr. anzeigenPreise & Kosten
Verhandlungsbasis
Provision für Käufer
Die Courtage in Höhe von 3,57 % inkl. der gesetzlichen Mehrwertsteuer, mindestens jedoch 3.570 Euro inkl. Mehrwertsteuer, auf den Kaufpreis ist mit dem Zustandekommen des Kaufvertrages (notarieller Vertragsabschluss) verdient und fällig.
Lage
Das Objekt befindet sich in Aue, einem Ortsteil der Gemeinde Molauer Land im Burgenlandkreis, Sachsen-Anhalt. Die Entfernung beträgt etwa 3km nach Schkölen, 14km nach Eisenberg und 9km nach Dornburg-Camburg. Der nächste Bahnhof befindet sich in Camburg.
Einkaufsmöglichkeiten, Schulen, Apotheken, Banken und...
Das Haus
Geschosse
3 Geschosse
Baujahr
1930
Bezug
nach Vereinbarung
Derzeitige Nutzung
frei
Energie & Heizung
Warum sehe ich diese Anzeige? – Du siehst diese Anzeige basierend auf Ihrer Navigation auf unserer Website und den Suchkriterien, die du verwendet hast.
Energieausweistyp
Verbrauchsausweis
Gebäudetyp
Wohngebäude
Baujahr laut Energieausweis
1930
Wesentliche Energieträger
Öl
Gültigkeit
11.11.2025 bis 11.11.2035
Effizienzklasse
E
Endenergieverbrauch
142,00 kWh/(m²·a)
Weitere Energiedaten
Haustyp
Massivhaus
Energieträger
Öl
Heizungsart
Zentralheizung
Details
Objektbeschreibung
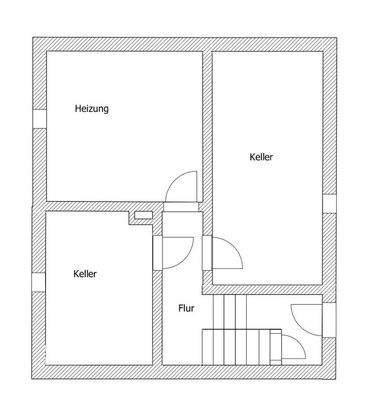
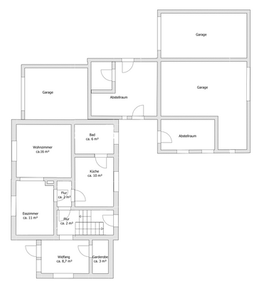
Dieses gepflegte Einfamilienhaus erstreckt sich über drei Wohnetagen und bietet ca. 120m² Wohnfläche. Das Haus ist unterkellert, und das Dachgeschoss ist noch nicht vollständig ausgebaut, sodass zusätzlicher Gestaltungsspielraum besteht.
Im Erdgeschoss erwarten Sie ein großzügiger Eingangsbereich mit Abstellraum, ein...
Weitere Informationen
Immobilien
Ihre Immobilie ist bei uns in besten Händen - gerne sind wir auch für Sie erfolgreich!
Wenn Sie eine Immobilie verkaufen möchten oder wissen möchten was Ihre Immobilie wert ist, dann sind Sie bei uns richtig!
Wir suchen für unsere Kunden Wohnungen, Häuser und Grundstücke.
Auf unseren Seiten...
Dokumente
Anbieter der Immobilie

Online-ID: 2l3tl5e
Finde Angebote wie dieses
Hier geht es zu unserem Impressum, den Allgemeinen Geschäftsbedingungen, den Hinweisen zum Datenschutz und nutzungsbasierter Online-Werbung.