

SIS-Sparkassen-Immobilien-Service GmbH
Frau Nadine Seidlmayer
089 ···
Nr. anzeigenPreise & Kosten
Provision für Käufer
3,57 % inkl. MwSt.
Lage
Die Gewerbeeinheit befindet sich in hervorragender Lage an der Dachauer Straße 175, nur wenige Gehminuten vom Leonrodplatz entfernt, im gefragten Münchner Stadtteil Neuhausen. Die Adresse profitiert von ihrer ausgezeichneten Sichtbarkeit an einer der wichtigsten Verkehrsachsen der Stadt sowie von einer sehr guten Anbindung an...
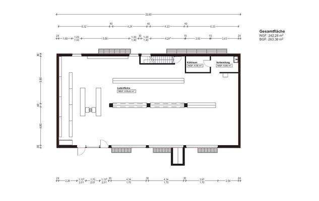
Die Ladenfläche
Kategorie
Laden
Baujahr
1961
Derzeitige Nutzung
vermietet
Energie & Heizung
Warum sehe ich diese Anzeige? – Du siehst diese Anzeige basierend auf Ihrer Navigation auf unserer Website und den Suchkriterien, die du verwendet hast.
Energieausweistyp
Verbrauchsausweis
Gebäudetyp
Wohngebäude
Baujahr laut Energieausweis
1961
Wesentliche Energieträger
Öl
Gültigkeit
11.10.2018 bis 10.10.2028
Effizienzklasse
E
Endenergieverbrauch
136,20 kWh/(m²·a) - Warmwasser enthalten
Weitere Energiedaten
Energieträger
Öl
Details
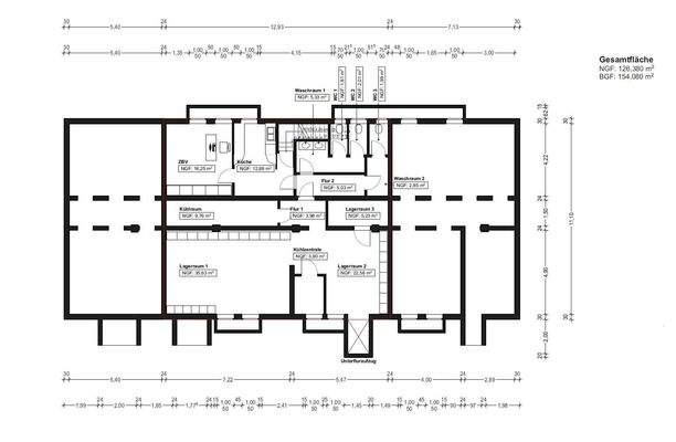
Objektbeschreibung
Kurzbeschreibung
München - Neuhausen
Objekt
Mit einer Gesamtbruttofläche von ca. 417,38?m² in bester Stadtlage unweit des Leonrodplatzes in München-Neuhausen steht diese attraktive Gewerbeeinheit zum Verkauf. Die Immobilie befindet sich in einem gepflegten Gebäudekomplex an der Dachauer Straße und bietet ein...
Preisinformation
Ist-Mieteinnahmen pro Jahr: 54.000,00 EUR
Weitere Informationen
Sonstiges
Sämtliche Bilder in diesem Exposé sind urheberrechtlich geschützt und dürfen nicht durch Dritte verwendet bzw. weitergegeben werden. Dieses Exposé wurde mit Sorgfalt zusammengestellt. Alle darin enthaltenen Angaben über das Objekt beruhen auf Informationen des Verkäufers. Eine Haftung für deren Richtigkeit und...
Anbieter der Immobilie
SIS-Sparkassen-Immobilien-Service GmbH
Ungererstraße 75, 80805 München

Online-ID: 2l3tm5q
Referenznummer: 1/20/020-021/016022
Finde Angebote wie dieses
Hier geht es zu unserem Impressum, den Allgemeinen Geschäftsbedingungen, den Hinweisen zum Datenschutz und nutzungsbasierter Online-Werbung.