
Marko Künne Immobilien
034 ···
Nr. anzeigenPreise & Kosten
Provision für Käufer
provisionsfrei
Lage
Holzhausen befindet sich südöstlich vom Leipziger Stadtkern. Das Ortsbild sind vor allem von Einfamilienhäuser geprägt und durch das ruhige und gepflegte Umfeld ist der Stadtteil besonders bei Familien sehr beliebt. Einkaufsmöglichkeiten des täglichen Bedarfs sind in nur wenigen Geh- oder Fahrminuten erreichbar. Holzhausen...
Die Wohnung
Kategorie
Maisonette
Wohnungslage
2. Geschoss
Derzeitige Nutzung
vermietet
Wohnanlage
Energie & Heizung
Warum sehe ich diese Anzeige? – Du siehst diese Anzeige basierend auf Ihrer Navigation auf unserer Website und den Suchkriterien, die du verwendet hast.
Weitere Energiedaten
Energieträger
Fernwärme
Heizungsart
Zentralheizung
Details
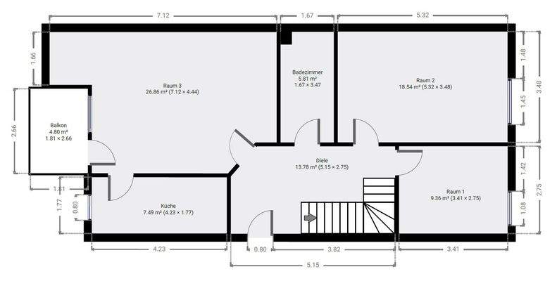
Objektbeschreibung
Diese attraktive 4-Zimmer-Maisonettewohnung befindet sich in ruhiger und grüner Lage von Holzhausen und bietet mit ca. 95?m² Wohnfläche auf zwei Etagen viel Raum für individuelles Wohnen. Die Wohnung liegt im 2. Obergeschoss und Dachgeschoss eines gepflegten Mehrfamilienhauses und überzeugt durch einen durchdachten Grundriss...
Preisinformation
Nettorendite Ist in %: 2,15
Nettorendite Soll in %: 2,15
Soll-Mieteinnahmen pro Jahr: 6.120,00 EUR
Ist-Mieteinnahmen pro Jahr: 6.120,00 EUR
Weitere Informationen
Stichworte
Stellplatz vorhanden, Anzahl der Badezimmer: 2, Anzahl Balkone: 1, Bundesland: Sachsen, 3 Etagen, Wohnungsnr.: WE 7.13
Anbieter der Immobilie
Online-ID: 2l3w95y
Referenznummer: 588382
Finde Angebote wie dieses
Hier geht es zu unserem Impressum, den Allgemeinen Geschäftsbedingungen, den Hinweisen zum Datenschutz und nutzungsbasierter Online-Werbung.