
MV-Immocenter
Herr Christoph Burkhardt
038 ···
Nr. anzeigenPreise & Kosten
Provision für Käufer
3,57
Der Maklervertrag mit uns kommt durch die Bestätigung der Inanspruchnahme unserer Maklertätigkeit zustande. Die Höhe der Courtage richtet sich nach den ab dem 23.12. Weitere Informationen siehe Provisionshinweis.
Lage
Fuhlendorf ist eine idyllische Gemeinde im Landkreis Vorpommern-Rügen in Mecklenburg-Vorpommern, gelegen am Südufer des Bodstedter Boddens und des Redensees. Sie besteht aus den Ortsteilen Fuhlendorf, Bodstedt, Michaelsdorf und Gutglück und bietet eine naturnahe Umgebung mit Wäldern und Gewässern. Die Nähe zum Nationalpark...
Das Haus
Kategorie
Einfamilienhaus
Baujahr
2015
Bezug
sofort
Energie & Heizung
Warum sehe ich diese Anzeige? – Du siehst diese Anzeige basierend auf Ihrer Navigation auf unserer Website und den Suchkriterien, die du verwendet hast.
Energieausweistyp
Bedarfsausweis
Gebäudetyp
Wohngebäude
Wesentliche Energieträger
Flüssiggas
Gültigkeit
24.05.2016 bis 24.05.2026
Effizienzklasse
B
Endenergiebedarf
75,40 kWh/(m²·a)
Weitere Energiedaten
Energieträger
Flüssiggas
Heizungsart
Fußbodenheizung, offener Kamin
Details
Objektbeschreibung
In ruhiger Lage einer neu entstandenen Ferien- und Wohnsiedlung in Fuhlendorf erwartet Sie dieses charmante, reetgedeckte Haus mit traditionellem Flair. Die ortstypische Feldsteineinfriedung, Fensterläden und der angrenzende Teich schaffen eine besondere Atmosphäre - ideal zur Eigennutzung oder zur...
Ausstattung
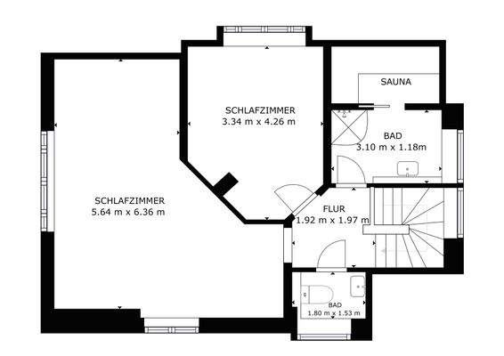
Objektart: Einfamilienhaus (zur Ferienvermietung geeignet)
Lage: Fuhlendorf, Landkreis Vorpommern-Rügen
Grundstück: ca. 836 m²
Wohnfläche: ca. 117 m²
Zimmer: 4 (3 Schlafzimmer, 1 Wohn-/Essbereich)
Bäder: 2 Bäder mit WC (ein Wannen- und ein Duschbad), separates Gäste-WC
Besonderheiten: Sauna, Kamin, Reetdach...
Preisinformation
2 Stellplätze
Weitere Informationen
Provisionshinweis
3,57
Der Maklervertrag mit uns kommt durch die Bestätigung der Inanspruchnahme unserer Maklertätigkeit zustande. Die Höhe der Courtage richtet sich nach den ab dem 23.12.2020 in Kraft getretenen, gesetzlichen Regelungen zur Teilung der Maklercourtage. So wird die Courtage für beide Parteien (Eigentümer...
Anbieter der Immobilie
MV-Immocenter
Frankendamm 69, 18439 Stralsund
Online-ID: 2l43b5p
Referenznummer: ID-2025_18
Finde Angebote wie dieses
Hier geht es zu unserem Impressum, den Allgemeinen Geschäftsbedingungen, den Hinweisen zum Datenschutz und nutzungsbasierter Online-Werbung.