

Aengevelt Immobilien GmbH & Co KG
Team Gewerbliche Vermietung
+49 ···
Nr. anzeigenPreise & Kosten
Provision für Mieter
Weitere Informationen siehe Provisionshinweis.
Warum sehe ich diese Anzeige? – Du siehst diese Anzeige basierend auf Ihrer Navigation auf unserer Website und den Suchkriterien, die du verwendet hast.
Lage
Der Büroneubau befindet sich in verkehrgünstiger Lage im Stadtteil "Malzmühle" in Dülken. Ihre Nachbarschaft: Finanzamt Viersen, Wirtschaftsprüfung Warth & Klein, RWS Treuhand etc.. Die Viersener Innenstadt ist in nur 300 m gut erreichbar. Sie verfügen über ideale Verkehrsanbindungen in Richtung Flughafen "Düsseldorf...
Büro-/Praxisfläche
Kategorie
Bürofläche
Baujahr
2019
Bezug
3 Monate nach MV-Unterzeichnung
Energie & Heizung
Warum sehe ich diese Anzeige? – Du siehst diese Anzeige basierend auf Ihrer Navigation auf unserer Website und den Suchkriterien, die du verwendet hast.
Wärme
Strom
Energieausweistyp
Bedarfsausweis
Gebäudetyp
Nicht-Wohngebäude
Baujahr laut Energieausweis
2019
Wesentliche Energieträger
Strom
Gültigkeit
seit 28.03.2022
Endenergiebedarf (Wärme)
78,00 kWh/(m²·a)
Endenergiebedarf (Strom)
43,00 kWh/(m²·a)
Weitere Energiedaten
Energieträger
Elektro
Details
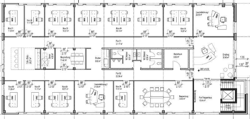
Objektbeschreibung
Das 2-geschossige Bürogebäude wurde 2020 fertig gestellt. Die multifunktionale Bürofläche bietet individuelle Einzel- und Doppelbüros für konzentriertes Arbeiten sowie offene Lösungen für Teamarbeit. Da der Büroausbau 3 Monate nach Mietvertragsunterzeichnung vorgesehen ist, kann Ihre individuelle Raumaufteilung sowie...
Ausstattung
- Öffenbare bodentiefe Fenster
Weitere Informationen
Provisionshinweis
provisionspflichtig
Im Anmietungsfall beträgt die Maklerprovision bei Mietverträgen von bis zu 5 Jahren Laufzeit 3,0 Netto-Monatsmieten, bei einer Vertragsdauer von über 5 Jahren 4,0 Netto-Monatsmieten, jeweils zzgl. gesetzlicher Mehrwertsteuer. Die Provision ist verdient / fällig bei...
Anbieter der Immobilie
Aengevelt Immobilien GmbH & Co KG
Kennedydamm 55/Ross-Strasse, 40476 Düsseldorf

Online-ID: 2l45q5r
Referenznummer: 32921
Finde Angebote wie dieses
Hier geht es zu unserem Impressum, den Allgemeinen Geschäftsbedingungen, den Hinweisen zum Datenschutz und nutzungsbasierter Online-Werbung.