
ohne-makler.net - Immobilien selbst vermarkten
Privat von Heiko Diekmann
Kontaktiere den Anbieter schriftlich, es ist keine Telefonnummer hinterlegt.
Preise & Kosten
Provision für Käufer
provisionsfrei
Lage
Nahezu einzigartig ist zum ersten die Lage.
Es sind nur 150 Meter bis zum Naturpark Leeraner Westerhamrich mit mehreren kleinen Seen, Kinderspielplatz und und sehr schöne Wanderwege. In ca. 10-15 Minuten ist man zu Fuß im Stadtzentrum, der Fußgängerzone, verschieden Supermärkte, Krankenhäuser und alles andere was die...
Das Haus
Kategorie
Doppelhaushälfte
Baujahr
2025
Bezug
nach Absprache
Energie & Heizung
Warum sehe ich diese Anzeige? – Du siehst diese Anzeige basierend auf Ihrer Navigation auf unserer Website und den Suchkriterien, die du verwendet hast.
Weitere Energiedaten
Energieträger
Elektro
Details
Objektbeschreibung
Diese DHH befindet sich noch im Bau. Ich verkaufe sie oder ermögliche einen Mietkauf.
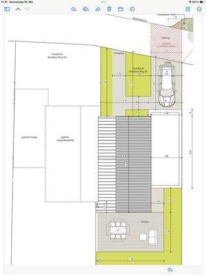
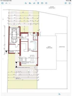
Die Grundrisse. Die zum Süden ausgerichteten Wohnräume erlauben einen weiten und wirklich wunderschönen Blick über die Gärten der Häuser der Hajo- Unken- Str..
Details siehe Zeichnungen.
Eine Garage mit zusätzlichen Abstellraum...
Ausstattung
Terrasse, Vollbad, Gäste-WC, Fliesen, Sonstiges (s. Text)
Bemerkungen:
Die technische Ausstattung ist hervorzuheben. Natürlich gibt's schnelles Internet (Glasfaser) eine PV Anlage mit rund 10 kWh. Ein Akkuspeicher bleibt optional. Der selbst produzierte Strom kann auch eine Elektroauto aufladen. Beheizt wird mit...
Preisinformation
1 Stellplatz
1 Garagenstellplatz
Weitere Informationen
Sonstiges
Heizungsart: Sonstiges (s. Text)
Energieträger: Strom
Energieausweis nicht vorhanden
Mietkauf als Option.
Erklärung:
Sie mieten eine dieser Doppelhaushälften. Sie zahlen eine etwas höhere Miete. Dafür wird zusätzlich zum Mietvertrag ein Kaufvertrag abgeschlossen. Der Kaufpreis wird schon jetzt...
Anbieter der Immobilie
ohne-makler.net - Immobilien selbst vermarkten
Humboldtstr. 25 A, 21509 Glinde
Privat von Heiko Diekmann
Dein Ansprechpartner
Kontaktiere den Anbieter schriftlich, es ist keine Telefonnummer hinterlegt.
Online-ID: 2l4635w
Referenznummer: 399710
Finde Angebote wie dieses
Hier geht es zu unserem Impressum, den Allgemeinen Geschäftsbedingungen, den Hinweisen zum Datenschutz und nutzungsbasierter Online-Werbung.